EasyManua.ls Logo

PowerTec PT3200i - Page 36

PowerTec PT3200i
40 pages
Print Icon
To Next Page IconTo Next Page
To Next Page IconTo Next Page
To Previous Page IconTo Previous Page
To Previous Page IconTo Previous Page
Loading...
36.
www.powertec.net.nz
PT3200i
3000W DIGITAL
INVERTER GENERATOR
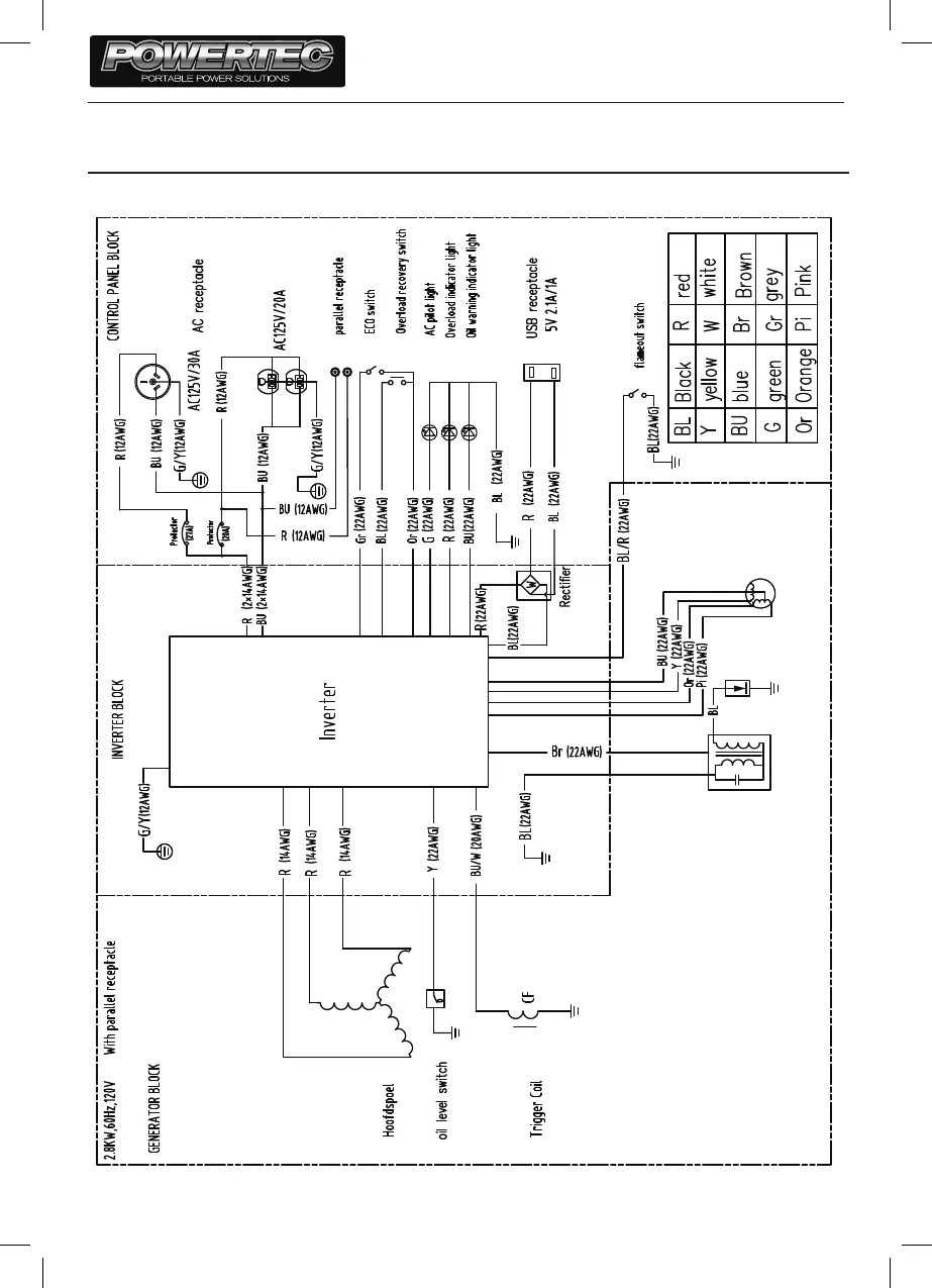
PT3200i SCHEMATICS