EasyManua.ls Logo

pro comp K2079BMX - Rear Installation

Default Icon
17 pages
Print Icon
To Next Page IconTo Next Page
To Next Page IconTo Next Page
To Previous Page IconTo Previous Page
To Previous Page IconTo Previous Page
Loading...
14
56713B/K2079B
Revised
2.19.15
1. Block the front tires and raise the rear of
the vehicle. Support the frame with jack
stands forward of the rear springs.
2. Remove the wheels and tires.
3. Remove the shocks on both sides of the
vehicle. It may be necessary that you
slightly raise the axle to unload the
shocks for removal.
4. Remove the factory bump stop from the
frame.
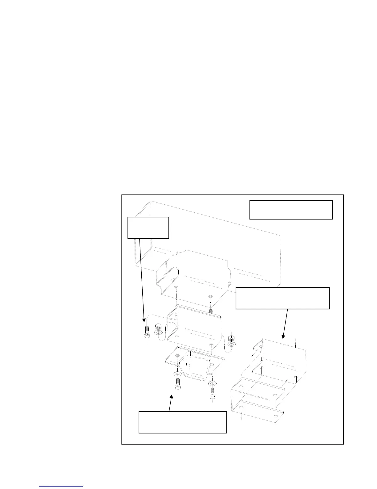
5. Fit 2 of the new BUMP STOP BRACK-
ETS 90-3081 together as shown in Illus-
tration A. Then bolt to the frame using
the factory bolts.
6. Using the hardware
from pack 90-6223
bolt the bump stop to
the brackets. As
shown in Illustration
A.
7. Repeat the installation
on the other side of
the vehicle.
8. Loosen the U-bolts
on the passenger
side. Remove the U-
bolts on the drive
side.
9. Install the lift block
(95-300D) on the axle
pad and use your floor
jack to raise the axle to
the spring. Apply a
slight amount of pres-
sure with your floor
jack against the spring
pack and engage the
centering pins into the
locating holes at the
top of the lift block.
NOTE: The fac-
tory spring pack will have two metal
pins on the bottom, it may have a third
plastic pin in the center. To install the
lift block this plastic pin can be re-
moved with a pair of pliers.
10. Secure the assembly with the U- bolts
13-90330 and new high-nuts and washers
from hardware pack 20-65302. Do not
tighten the U-bolts at this time. See Il-
lustration B.
NOTE: make sure the block sits flush
on the axle perch.
NOTE: If the vehicle is equipped with
a Dana 80 rear end, use U-bolts 13-90328
and hi-nuts 20-65471. The holes in the
Rear Installation
ILLUSTRATION A
3/8” HARDWARE
FROM PACK 90-6223
BUMP STOP BRACKETS
90-3081
OE BOLT

Related product manuals