EasyManua.ls Logo

Pro-face GP-4201TW - Parts Identification and Functions

Pro-face GP-4201TW
241 pages
Print Icon
To Next Page IconTo Next Page
To Next Page IconTo Next Page
To Previous Page IconTo Previous Page
To Previous Page IconTo Previous Page
Loading...
176
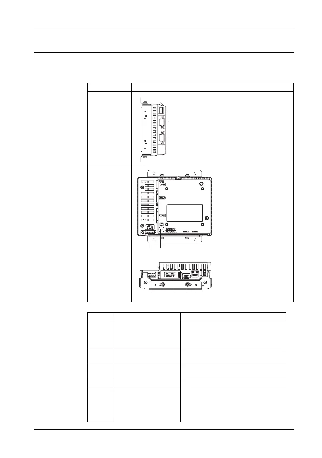
7.4 Parts Identification and Functions
PFXGP4301TADR
Side PFXGP4301TADR
Right
Rear
Bottom
Part Name Description
A USB (Type A) Interface Conforms to USB2.0 (Type A) x 1. Power
supply voltage: 5Vdc+/-5%. Output Current:
500 mA or less. Maximum communication
distance: 5 m (16.4 ft).
B Serial Interface (COM1) RS-232C Serial Interface. Connector: D-Sub 9
pin (plug) x 1.
C Serial Interface (COM2) RS-422/485 Serial Interface. Connector: D-
Sub 9 pin (plug) x 1.
D Power Plug Connector -
E
SD Card Access LED
This lamp lights up when SD Card is inserted.
( see page 181)
NOTE: Do not remove or insert the SD Card
when the LED lamp is on. Doing so may
damage data on the SD Card.
$
%
&
')
*
+ ,

Table of Contents

Related product manuals