EasyManua.ls Logo

ProForm 831.297791 - Assembly

ProForm 831.297791
22 pages
Print Icon
To Next Page IconTo Next Page
To Next Page IconTo Next Page
To Previous Page IconTo Previous Page
To Previous Page IconTo Previous Page
Loading...
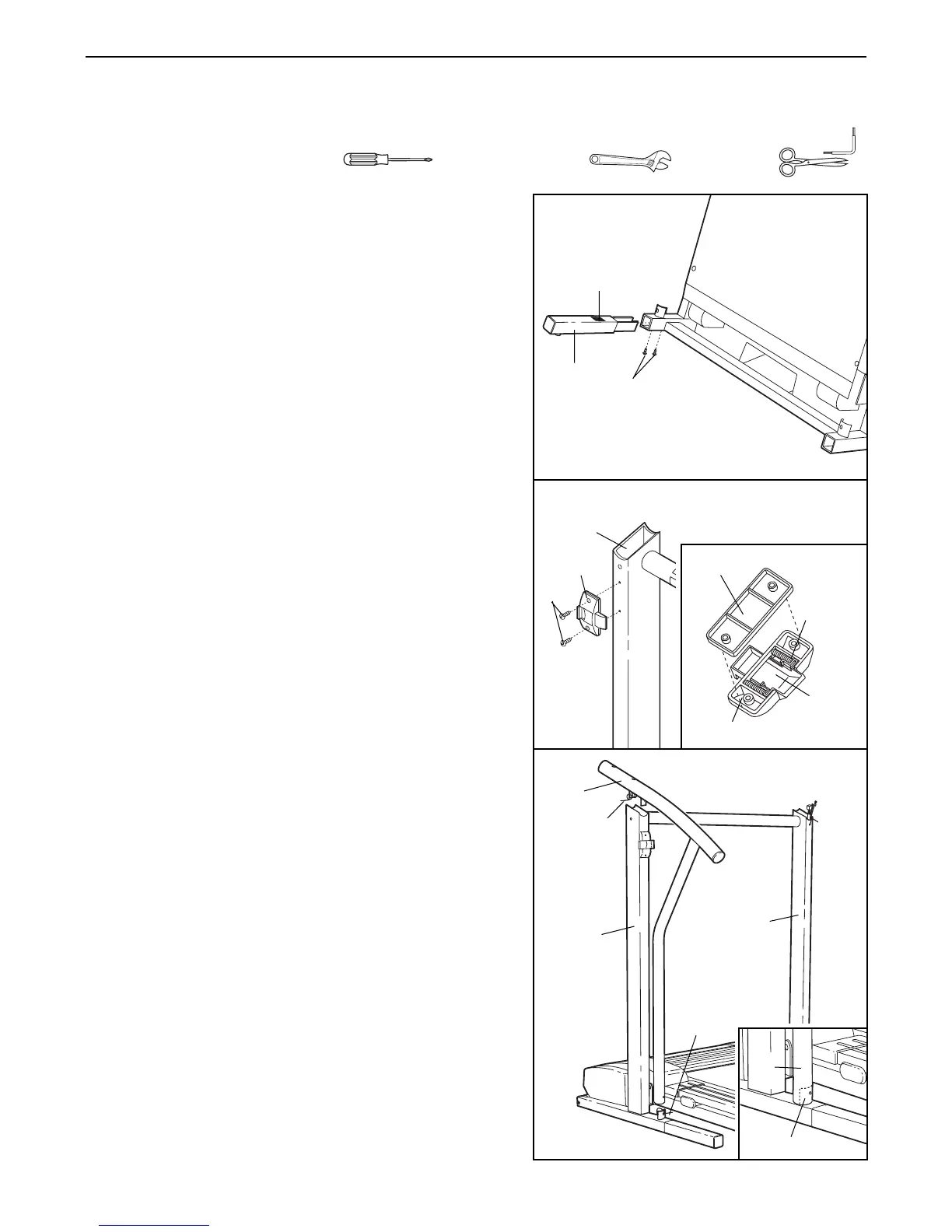
1. With the help of a second person, carefully raise the
treadmill to the upright position. While a second person
tips the treadmill to one side slightly and holds it, insert
one of the Extension Legs (103) into the treadmill as
shown. Make sure that the Extension Leg is turned so
the Warning Decal (20) is on top. Tighten two of the
four Short Screws (101) into the treadmill and the
Extension Leg. Next, tip the treadmill to the other side
and attach the other Extension Leg in the same way.
With the help of a second person, carefully lower the
treadmill so that both Extension Legs (103) are resting
flat on the floor.
20
101
103
1
ASSEMBLY
Assembly requires two people. Set the treadmill in a cleared area and remove all packing materials. Do not
dispose of the packing materials until assembly is completed. Assembly requires the included allen wrench
and your own phillips screwdriver , adjustable wrench and scissors .
3. Cut the plastic tie off the bracket on the base of each
Upright (82).
Next, cut the plastic tie off the Left Handrail (74).
Position the Left Handrail on the left Upright (82). The
bracket on the base of the left Upright should be inside
of the lower end of the Left Handrail, as shown in the
inset drawing.
Plastic
Tie
74
82
Plastic
Tie
82
3
Bracket
74
2. Refer to HOW TO LOWER THE TREADMILL FOR
USE on page 14. Follow the instructions in step 2 to
lower the treadmill.
Without removing the tape from the Latch (77), attach
the Latch to the left Upright (82) with two 3/4Ó Screws
(81). Make sure that the Screws are tight, but do not
overtighten them; if the Screws are overtightened,
the Latch will not slide smoothly. After the Latch is
attached, remove any visible tape.
Note: The inset drawing shows how the parts of the
Latch (77) fit together.
77
81
82
2
Spacer
Springs
Bracket
Latch
6

Related product manuals