EasyManua.ls Logo

ProFusion PH-950NR - Page 8

ProFusion PH-950NR
15 pages
Print Icon
To Next Page IconTo Next Page
To Next Page IconTo Next Page
To Previous Page IconTo Previous Page
To Previous Page IconTo Previous Page
Loading...
8
5,000W/240V WALL / CEILING MOUNTED GARAGE HEATER
WITH ELECTRONIC CONTROLLER AND REMOTE
Model: PH-950NR
Volt: 240 V
Watts: 5000 W
Frequency: 60 Hz
Recommended Heating Capacity: 1.25 watts / ft³ (0.03m³)
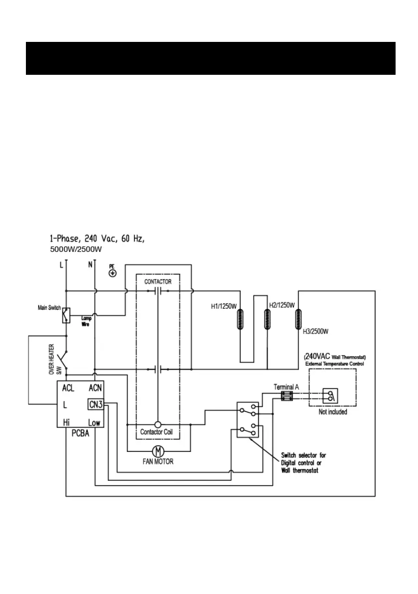
Wiring diagram:
SPECIFICATIONS

Related product manuals