EasyManua.ls Logo

Promac GREEN PLUS - Page 135

Promac GREEN PLUS
Print Icon
To Next Page IconTo Next Page
To Next Page IconTo Next Page
To Previous Page IconTo Previous Page
To Previous Page IconTo Previous Page
Loading...
Data:
Disegnatore:
PROGETTO:
DENOMINAZIONE:
CODICE: Controllato:
U. T.
U. T.
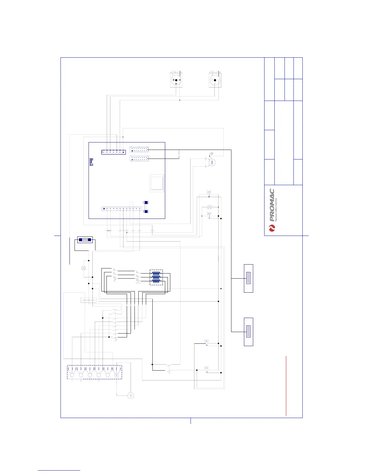
SCHEMA
ELETTRICO
PROMAC09
01/09/09
GREEN ME 2 gruppi COMPACT.
Se_1344
Disegno eseguito con CAD. Non sono ammesse modifiche o variazioni manuali.
IDENTIFICATIVO:
Diffusione e riproduzione vietata a termini di legge senza nostra autorizzazione.
Promac Italia s.r.l.
Via Cremona, 1 20025 Legnano (MI)
Tel +39 0331 455102
Fax +39 0331 484218
www.promacitalia.com
MP
CV1
CV2
+
OUT2
OUT1
+
CN5
CN1CN2
TRASFORMATORE
F1
CN4
CN6
GR1GR2
EA
EC
LC
TG2
TG1
R
SR
P
LS
SL
CEM
L1
N
L2
L3
M
MT
IG
IG1
EG1 EG2
1
2
3
GV
GV
GV
B
B
B
R M
VI
R
M
VI
GV
GV
RO
RO
9 N
10 B
B
7 AR
1 VI
2 R
5 G
6
RO
11
GV
GV
AR B
GV
G
B B
RO
NB
M N R
M N R
M N R
B3
B1
B2
R
N
M
R
N
M
GV
N
B
B N
N N
AR AR
B
B B
VI R
VI
R
L4 L1 L2 N2 N1 N4 L9 N9
U1 V1 W1 W2 U2 V2 P1 P2
F1
**
** USA VERSION ONLY
135

Table of Contents

Related product manuals