EasyManua.ls Logo

Promac GREEN PLUS - Page 138

Promac GREEN PLUS
Print Icon
To Next Page IconTo Next Page
To Next Page IconTo Next Page
To Previous Page IconTo Previous Page
To Previous Page IconTo Previous Page
Loading...
Data:
Disegnatore:
PROGETTO:
DENOMINAZIONE:
CODICE: Controllato:
U. T.
U. T.
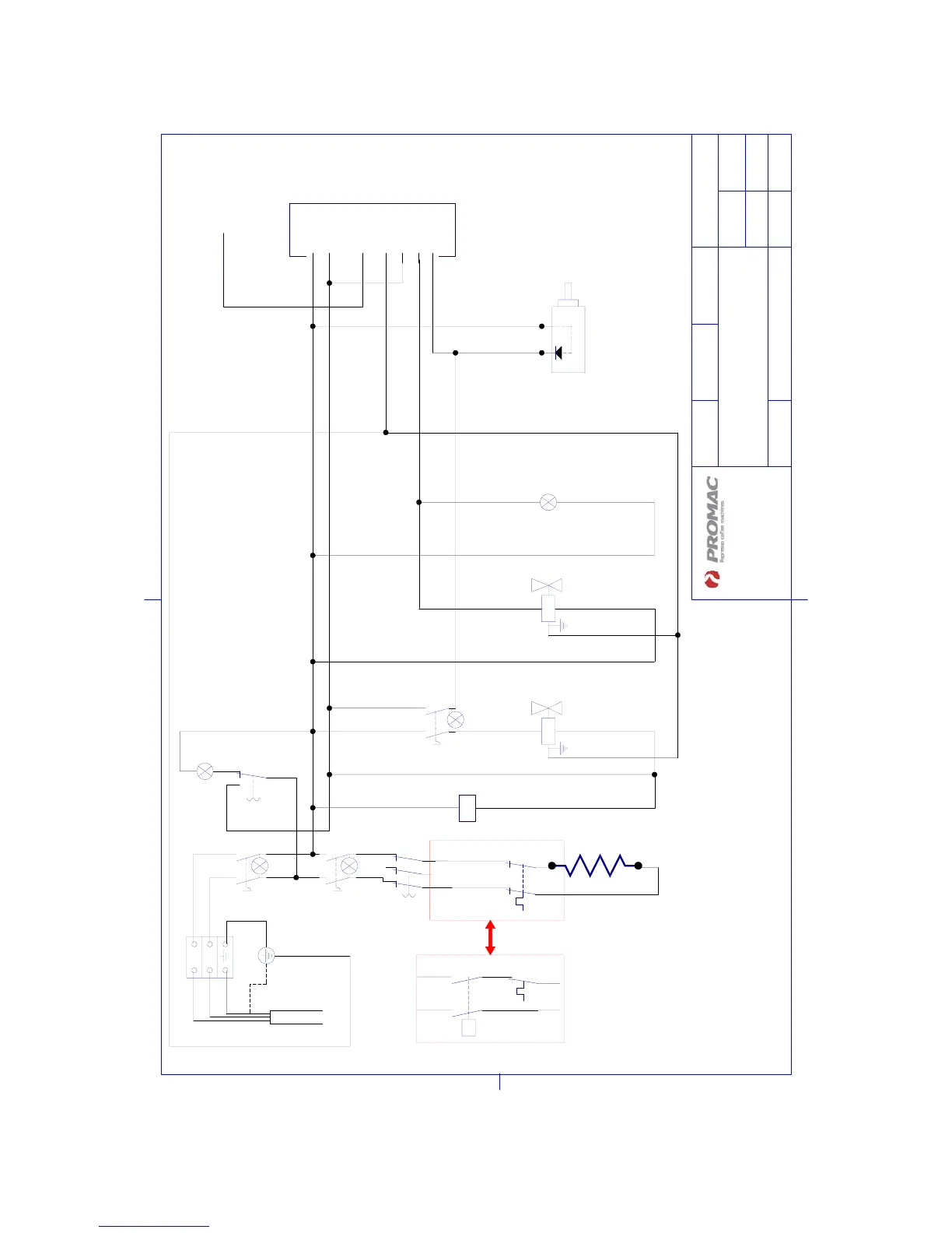
SCHEMA
ELETTRICO
PROMAC09
01/09/09
CLUB PU-S 1 gruppo
Versione 230V e 110V USA.
Se_1347
Disegno eseguito con CAD. Non sono ammesse modifiche o variazioni manuali.
IDENTIFICATIVO:
Diffusione e riproduzione vietata a termini di legge senza nostra autorizzazione.
Promac Italia s.r.l.
Via Cremona, 1 20025 Legnano (MI)
Tel +39 0331 455102
Fax +39 0331 484218
www.promacitalia.com
L
N
5 1
4 2
SL
M
BI/B
GV
BI/B
RO
N
F
N
SL
SR
C
N.O.
N.O.
1
2
8
9
4
6
7
CA
GR
LC
ECEG
IG1
IG
IR
P
TS
M1
MT
1
2
3
M
B
GV
GV
GV
41
52
B M
1 4
2 5
B M
21
22
RC
GV B
R
N
R
M BI/B
GV M
G G
M
N M
BI
1
23
PL
LS
VBI/B
B
VP
RR
*RR
TS
B M
11 21
2212
MB
B
B
M
M
* USA Version
138

Table of Contents

Related product manuals