EasyManua.ls Logo

QuickJack 5000TL - Page 37

QuickJack 5000TL
144 pages
Print Icon
To Next Page IconTo Next Page
To Next Page IconTo Next Page
To Previous Page IconTo Previous Page
To Previous Page IconTo Previous Page
Loading...
QuickJack Portable Car Jack 37 P/N 5900263 Rev. B6 September 2023
Check the Vehicle. Never exceed the QuickJack’s weight rating. Do not allow people inside a
Vehicle you are raising. Make sure the Vehicle is not overbalanced on either end. You must use the
factory-recommended Lifting Points for the Vehicle. Never raise just one side, one corner, or one
end of a Vehicle.
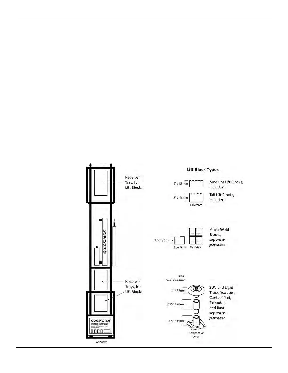
About Lift Blocks
When raising a Vehicle with your QuickJack, the Vehicle should not touch the QuickJack Frames.
Instead, they should touch the Lift Blocks that are sitting in the QuickJack’s Receiver Trays.
There are three types of Lift Blocks available:
Medium/Tall. Four Medium and four Tall Lift Blocks are included with each QuickJack. You can
stack one Medium on one Tall, but no more than that; make sure they are centered under the
Lifting Points.
Pinch Weld. Ideal for raising Vehicles by their pinch welds. Purchase separately.
SUV and Light Truck Adapter. Each set includes four round Contact Pads, four Extenders,
and four Bases. Perfect for Vehicles with high ground clearance or non-standard Lifting Points.
Purchase separately.
CAUTION Always use Lift Blocks, Pinch-Weld Blocks, or SUV and Light Truck Adapters in the
Receiver Trays. Never raise a Vehicle directly on the QuickJack Frames.
Raising a Vehicle on the Frames could damage the Vehicle and/or the QuickJack.

Other manuals for QuickJack 5000TL

Related product manuals