EasyManua.ls Logo

Quincy Compressor QCS450 - Qcs900;Qcs1600

Quincy Compressor QCS450
40 pages
Print Icon
To Next Page IconTo Next Page
To Next Page IconTo Next Page
To Previous Page IconTo Previous Page
To Previous Page IconTo Previous Page
Loading...
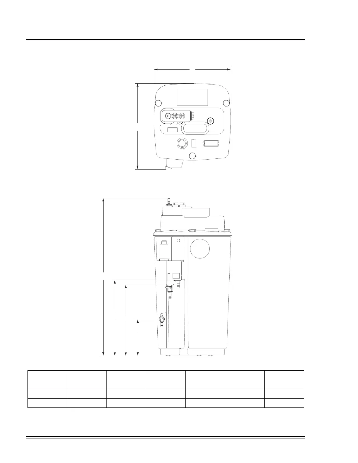
Appendix A - Dimensional Drawings & Technical Data
QCS900/QCS1600
F
E
D
A
B
C
A
Inch (mm)
B
Inch (mm)
c
Inch (mm)
D
Inch (mm)
E
Inch (mm)
F
Inch (mm)
QcS900
44.1 (1120) 20.9 (531) 22.5 (572) 21.7 (551) 19.9 (505) 10.6 (269)
QcS1600
47.3 (1201) 25.95 (659) 27.7 (704) 22.8 (579) 21.1 (536) 7.9 (201)
30 Quincy Compressor-QCS High Efficiency Emulsion Separators

Related product manuals