EasyManua.ls Logo

Radiant RSF 24 E - BY-PASS; UNPACKING

Radiant RSF 24 E
24 pages
Print Icon
To Next Page IconTo Next Page
To Next Page IconTo Next Page
To Previous Page IconTo Previous Page
To Previous Page IconTo Previous Page
Loading...
Installation Manual
Combi - cod. 99943NA – November 2002
15
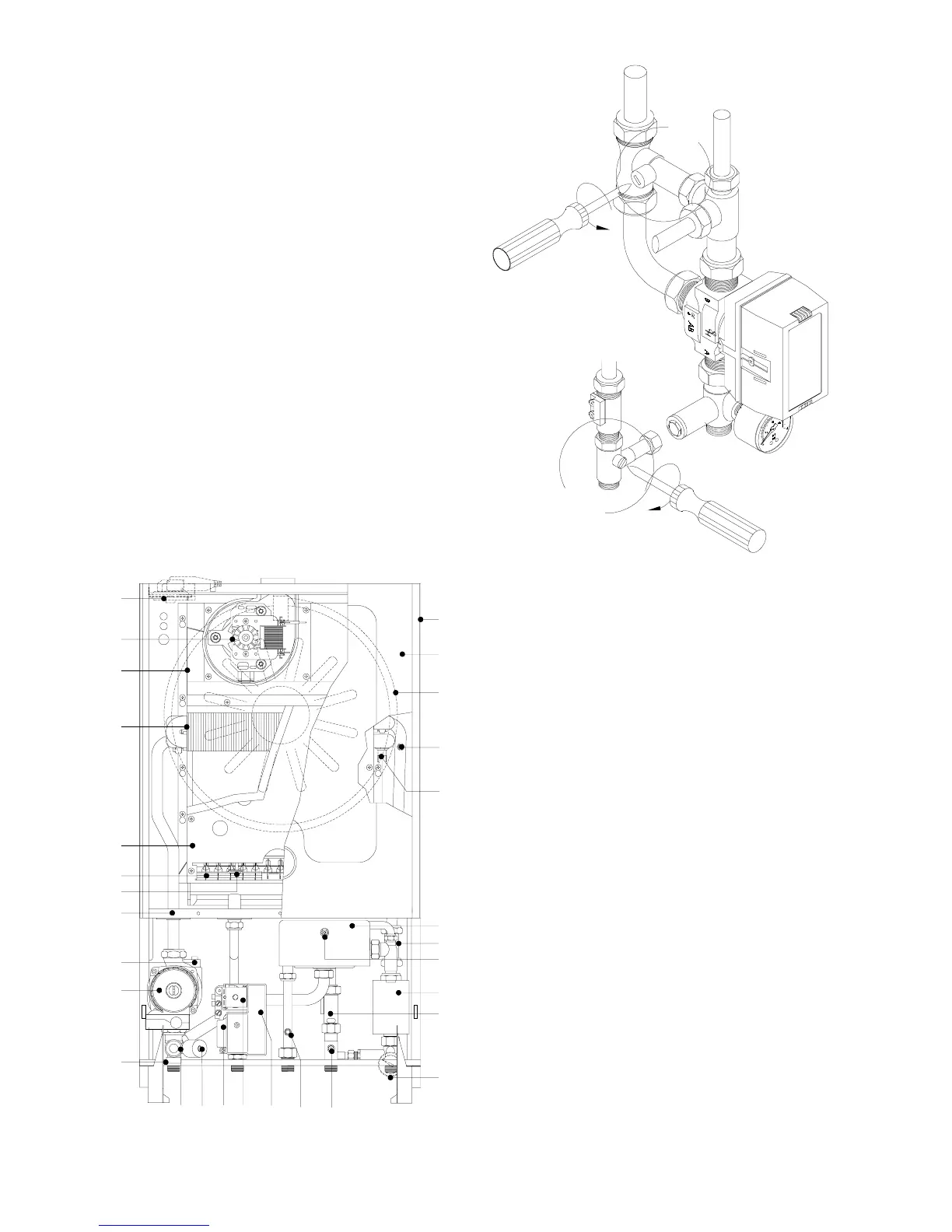
BY-PASS
All boilers are fitted with a by-pass. This element is
essential in the following cases:
if a two-way zone valve is installed
if thermostat valves are installed in the radiators.
To adjust the by-pass proceed as follows (see fig.1
pos.A):
fit the screwdriver to the plastic screw of the by-pass,
bearing in mind that when the slot of the screw is
horizontal the by-pass is totally open, allowing all the
water to pass, while when it is vertical the by-pass is
totally closed. For partial by-pass flows, use the
adjuster screw.
MAIN COMPONENTS
mod. RSF 20 E - RSF 24 E
KEY
1. FRAME
2. FLUE HOOD – ROOM SEALED COMBUSTION CHAMBER
3. COMBUSTION CHAMBER
4. ROOM SEALED CHAMBER COVER
5. ROOM SEALED CHAMBER BACK
6. HEAT EXCHANGER Mod. 20.000
HEAT EXCHANGER Mod. 24.000
7. D.H.W. EXCHANGER H20-H20 PB 21-73
D.H.W. EXCHANGER H20-H20 PB 24-73
8. EXCHANGER AIR VENT VALVE
9. MULTIGAS BURNER WITH 13 RAMPS
10. IGNITION ELECTRODE
11. FLAME IONISATION ELECTRODE
12. HEATING SAFETY THERMOSTAT
13. ELECTRONIC GAS VALVE VK4105 A 1001
14. GAS PRESSURE MODULATOR
15. ELECTRONIC IGNITION BOARD
16. EXPANSION VESSEL
17. 3-SPEED CIRCULATION PUMP WITH AIR VENT
18. AUTOMATIC AIR VENT
19. HEATING CIRCUIT 3 bar PRESSURE RELIEF VALVE
20. DRAINING TAP
21. WATER PRESSURE GAUGE
22. WATER PRESSURE SWITCH
23. HEATING SENSOR
24. HOT WATER SENSOR
25. 3-WAY DIVERTER VALVE
26. FLOWSWITCH CONNECTION WITH FLOW LIMITER
27. ELECTRONIC FLOWSWITCH
28. BY-PASS
29. AIR PRESSURE SWITCH
30.
FAN
20
13
19 23
14
15
24
26
20
18
17
5
9
11
3
6
2
29
30
4
8
27
25
28
7
12
24
16
1
A
B
C
Fig. 1
Fig. 2

Related product manuals