EasyManua.ls Logo

Radiant Slim RBA CS 24 E - Page 20

Radiant Slim RBA CS 24 E
38 pages
Print Icon
To Next Page IconTo Next Page
To Next Page IconTo Next Page
To Previous Page IconTo Previous Page
To Previous Page IconTo Previous Page
Loading...
Installation Manual
Floor standing storage boiler – Cod. 99949NA – November 2002
17
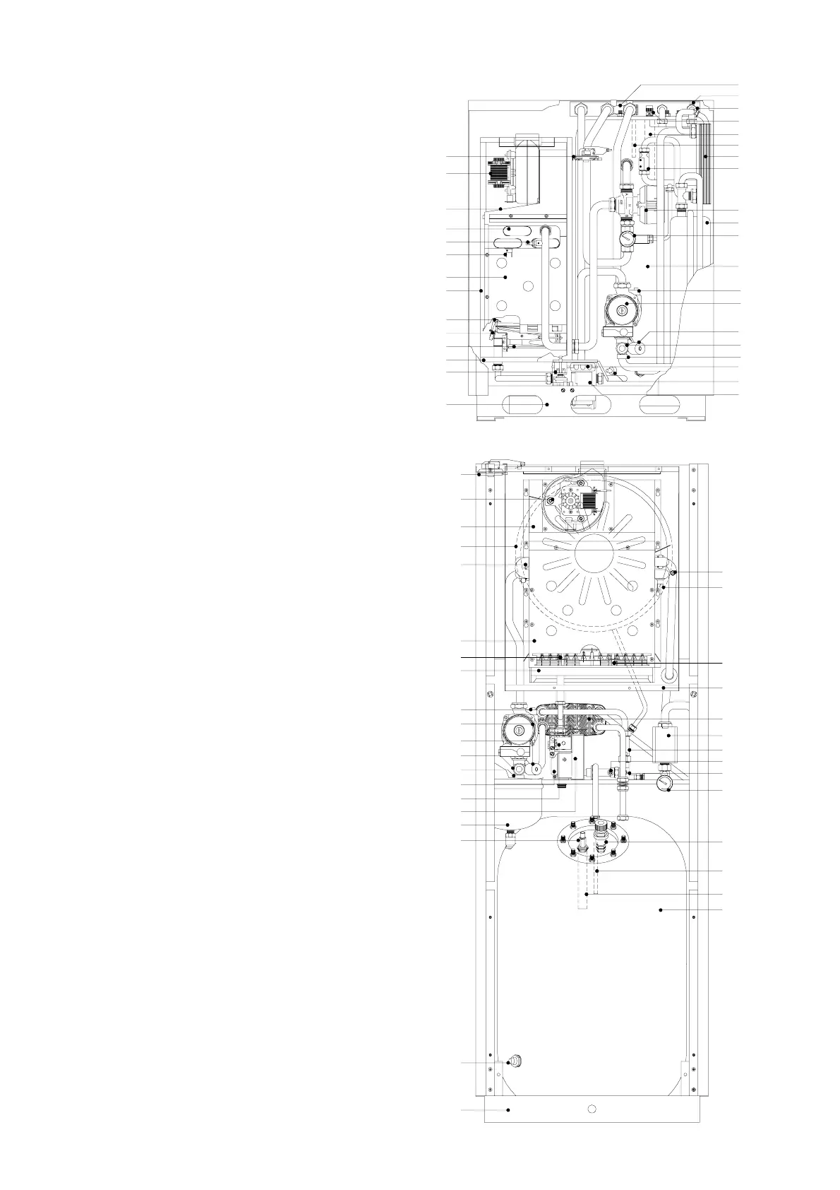
LEGENDA
1.
BOTTOM BLACK BASE
2.
FLUE HOOD – ROOM SEALED COMBUSTION
CHAMBER
3.
COMBUSTION CHAMBER mod. 24.000
4.
ROOM SEALED CHAMBER COVER
5.
ROOM SEALED CHAMBER BACK
6.
HEAT EXCHANGER 66A mod. 24.000
7.
MULTIGAS BURNER WITH 13 RAMPS mod. 24.000
8.
IGNITION ELECTRODE
9.
FLAME IONISATION ELECTRODE
10.
HEATING SAFETY THERMOSTAT
11.
ELECTRONIC GAS VALVE VK4105 A 1001
12.
GAS PRESSURE MODULATOR
13.
ELECTRONIC IGNITION BOARD
14.
EXPANSION VESSEL LT. 8
15.
EXPANSION VESSEL LT. 10
16.
3-SPEED CIRCULATION PUMP WITH AIR VENT
17.
AUTOMATIC AIR VENT
18.
HEATING CIRCUIT 3 bar PRESSURE RELIEF VALVE
19.
BOILER SAFETY VALVE SBS ½” 2821
20.
DRAINING TAP
21.
WATER PRESSURE GAUGE
22.
WATER PRESSURE SWITCH
23.
HEATING SENSOR
24.
HOT WATER SENSOR
25.
3-WAY DIVERTER VALVE
26.
FLOWSWITCH CONNECTION WITH FLOW LIMITER
27.
ELECTRONIC FLOWSWITCH
28.
BY-PASS
29.
BOILER DRAING TAP
30.
45 LITRE WATER STORAGE TANK
31.
100 LITRE WATER STORAGE TANK
32.
ANODE CONTROL VALVE
33.
PLATE TYPE EXCHANGER
34.
AIR PRESSURE SWITCH
35.
FAN
36.
FLUE SAFETY THERMOSTAT
37.
ANODE
38.
SANITARY EXPANSIONE VESSEL LT. 5
1
1
34
35
2
6
23
10
3
4
8
9
7
5
12
11
29
13
20
18
22
16
17
30
21
15
25
27
33
24
37
32
28
26
19
34
35
2
14
6
3
8
7
17
16
22
18
20
11
12
13
38
32
29
31
37
24
19
21
26
27
28
25
33
5
9
10
23

Related product manuals