EasyManua.ls Logo

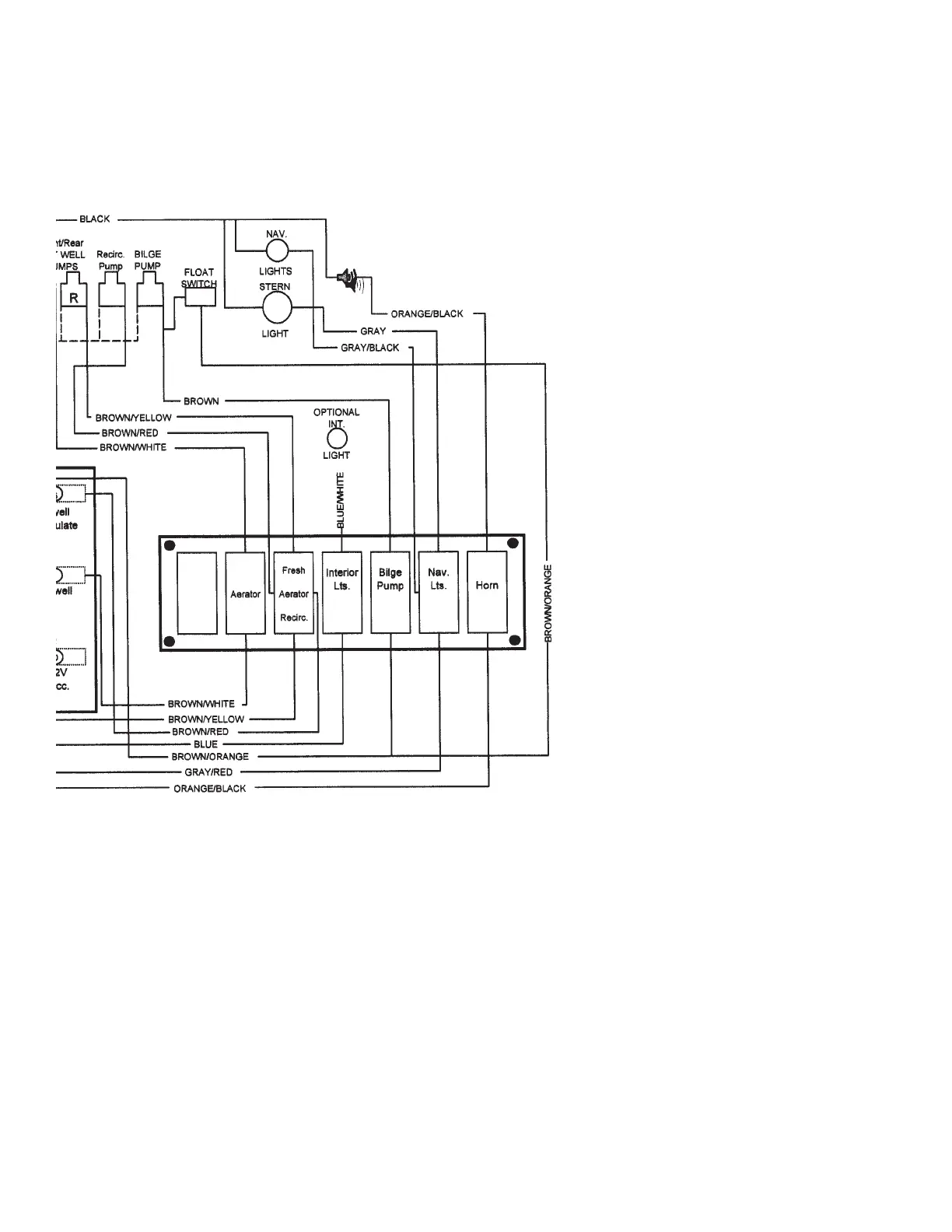
Ranger 2200 - Stern Livewell and System Wiring

Ranger 2200
77 pages
Print Icon
To Next Page IconTo Next Page
To Next Page IconTo Next Page
To Previous Page IconTo Previous Page
To Previous Page IconTo Previous Page
Loading...
47
47

Related product manuals