EasyManua.ls Logo

Redwall LRP3020 - Maintenance and Performance; Maintenance and Checks; Performance Considerations; Minimizing Unwanted Alarms

Default Icon
8 pages
Print Icon
To Next Page IconTo Next Page
To Next Page IconTo Next Page
To Previous Page IconTo Previous Page
To Previous Page IconTo Previous Page
Loading...
MAINTENANCE
In addition to regular ‘walk-tests’, periodically check that the unit is still firmly fixed to the mounting surface.
Check the front of the detector head for build up of dust, sand. animal or insect debris and carefully remove
by vacuum or blowing. Avoid touching or scraping the front window material. The frequency of these
checks will depend on the environment and location conditions. They should be carried out not less than
twice per year. Remove the terminal cover and check for ingress of water, insects, fungus and corrosion.
The detector head is factory sealed and no attempt should be made to open it.
PERFORMANCE CONSIDERATIONS
All P.I.R. detectors will exhibit changes in ultimate detection range. When an intruder moves across a zone
he causes a change in the received infrared heat energy. If the temperature difference is large, i.e. cold
background, warm intruder, the change of energy and therefore alarm signal, is large. Conversely, a well-
covered intruder against a hot background will produce a small signal. The effect is that the actual final
detection point will vary due to variations in background temperature, intruder size and clothing and speed
and direction of motion. The LRP 3020 is designed and tested to operate at 30 metres nominal, the LRP
4010 and LRP 404 is tested to 40 metres nominal. In some conditions the range may exceed these
distances, in other conditions (typically very hot) the ultimate range may be reduced.
UNWANTED ALARMS
The LRP 3020/4010 and 404 detectors are designed to ignore a wide range of hazards that can effect P.I.R
detectors when located outdoors. The heavy metal casing resists sudden temperature changes. The light
paint colour keeps internal temperatures low and the comprehensive sealing ensures a draught free
environment for the precision temperature sensors. The most likely cause of unwanted alarms will usually
be within the protective zones. Animals such as a dog, fox, or deer are likely to be detected. Smaller
animals such as rabbits or cats are unlikely to cause problems because they produce a relatively small
thermal image. Other common hazards may be movement of foliage within the zones and unstable
mounting surfaces.
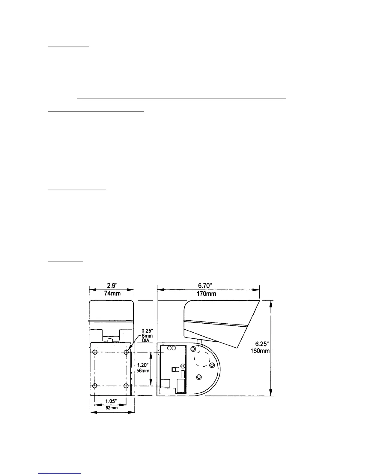
DIMENSIONS