EasyManua.ls Logo

Regal LS9 - Page 279

Default Icon
290 pages
Print Icon
To Next Page IconTo Next Page
To Next Page IconTo Next Page
To Previous Page IconTo Previous Page
To Previous Page IconTo Previous Page
Loading...
277
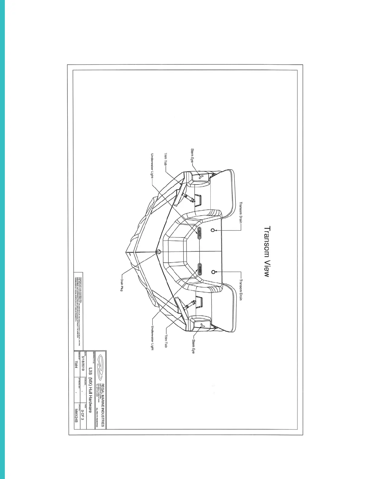
LX6 HULL HARDWARE TRANSOM

Related product manuals