EasyManua.ls Logo

Regal SMARTVALVES - Page 23

Default Icon
36 pages
Print Icon
To Next Page IconTo Next Page
To Next Page IconTo Next Page
To Previous Page IconTo Previous Page
To Previous Page IconTo Previous Page
Loading...
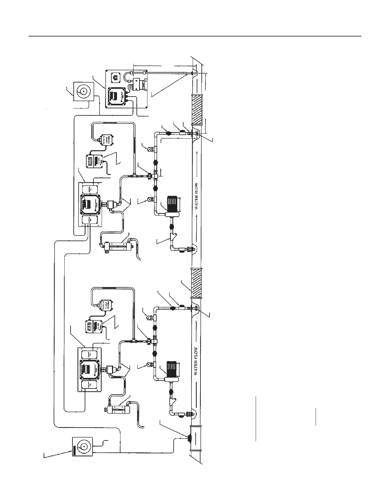
DRAWING NO. 5 — TYPICAL INSTALLATION
Automatic Gas Feed System for Chloramination
NOTE:
The sole purpose of this drawing is to show the gas flow path through the REGAL System components
and the order in which these components are connected.
System Example:
Using the theoretical ratio of 4:1 (chlorine to ammonia) and assuming a 100 PPD chlorination system is needed, a 25 PPD
ammoniator would be used. In order to always maintain the 4:1 ratio, the milliamp signal to the ammoniator CANNOT be series looped from the
water flowmeter signal because the chlorine residual analyzer and controller circuitry are continually varying the chlorinator dosage to compensate
for changing chlorine demand. Instead, the 4-20 milliamp signal to the ammoniator MUST be based on the chlorinator’s valve plug position.
The manual dosage adjustment on the flow proportional ammoniator can then be used to maintain the chemical ratio of 4:1. If the theoretical ratio
of 4:1 is not correct for the system in question, the chlorine to ammonia ratio can be increased by decreasing the dosage setting and vice versa.
Flow Recorder (BY OTHERS)
REGAL
A-255
Remote
Meter
Panel
REGAL
7500
Remote
Meter
Assembly
GAS FLOW from
Vacuum Regulator
GAS FLOW from
Vacuum Regulator
Vacuum
Tubing
Vacuum
Tubing
Isolation Valve
(Typ.) (BY OTHERS)
Booster Pump
(BY OTHERS)
Booster Pump
(BY OTHERS)
Y-Strainer
(BY OTHERS)
Pipe Union (Typ.)
(BY OTHERS)
Residual
Sample Line
(BY OTHERS)
REGAL Ejector Assembly
REGAL Ejector Assembly
Lag Time
(T1)
Lag
Time
(T3)
Lag Time (T2)
Static Mixer
(BY OTHERS)
Isolation Valve (Typ.)
(BY OTHERS)
Pipe Union (Typ.)
(BY OTHERS)
REGAL Remote
Diffuser (E-265)
Ammonia Solution Injection into Center of Main Line
Chlorine Solution Injection into
Center of Main Line
120/240 VAC
50/60 Hz
120/240 VAC
50/60 Hz
120/240 VAC
50/60 Hz
120/240 VAC
50/60 Hz
120/240 VAC
50/60 Hz
REGAL SMARTVALVE™
for Ammonia Model 7001A
REGAL SMARTVALVE™
for Chlorine Model 7009
Residual Recorder
(BY OTHERS)
REGAL Model
CRA-5000
Residual Analyzer
Water Flow Meter
(BY OTHERS)
Flow Analog Signal (4-20mA DC)
Flow Analog Signal (4-20 mA DC)
Residual Analog Signal (4-20 mA DC)
Chlorine Feed Rate (Output) Signal (4-20mA DC) from Chlorine SMARTVALVE
Gauge for
Supply
Pressure
(Ps)
Gauge for
Supply
Pressure
(Ps)
Gauge for Back
Pressure (Pb)
Gauge for
Back Pressure
(Pb)
REGAL
VAC-1000
Vacuum Monitor
REGAL VAC-1000
Vacuum Monitor
23

Related product manuals