EasyManua.ls Logo

Regency Ceiling Fans Envoy - Electrical Connections

Default Icon
12 pages
Print Icon
To Next Page IconTo Next Page
To Next Page IconTo Next Page
To Previous Page IconTo Previous Page
To Previous Page IconTo Previous Page
Loading...
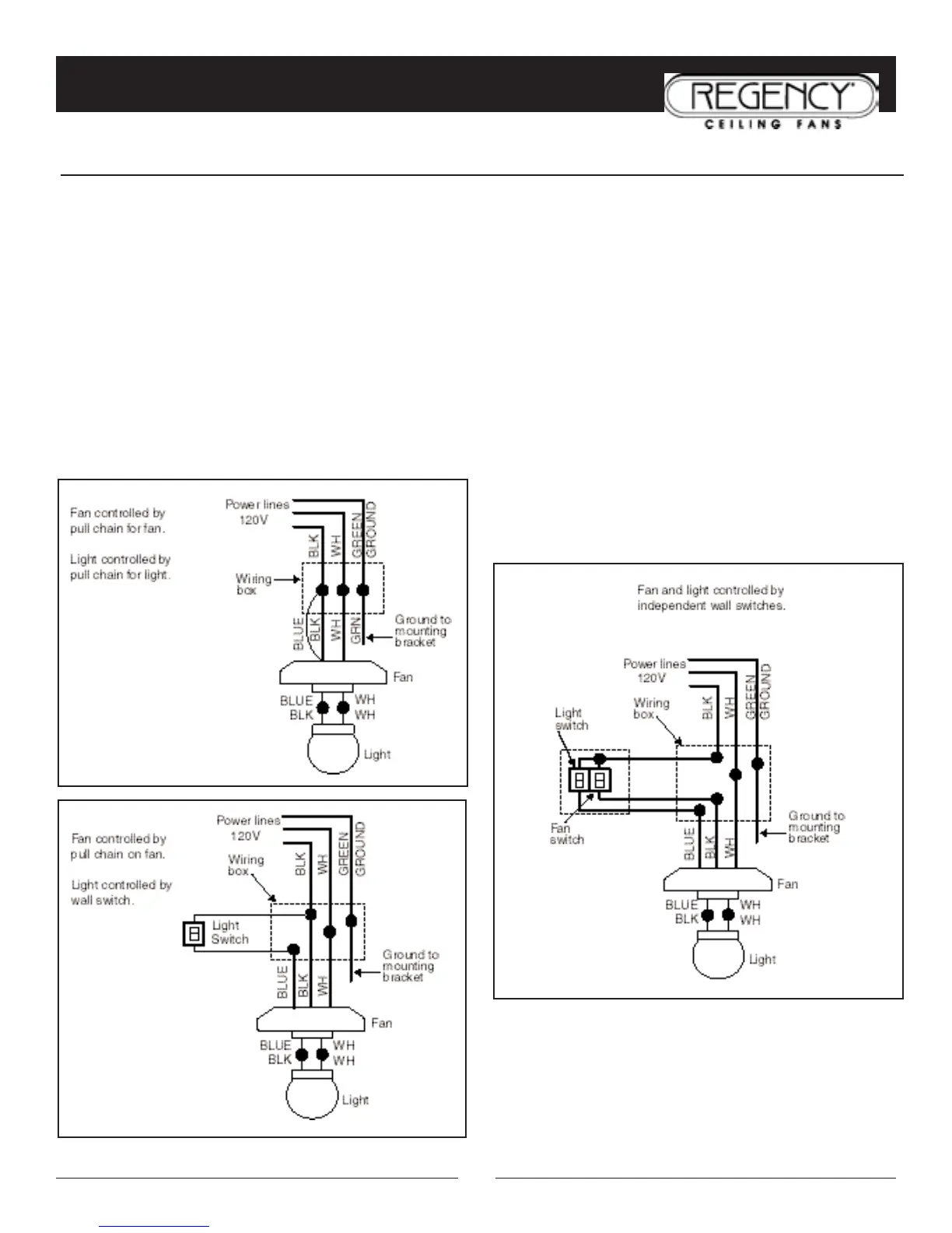
ELECTRICAL CONNECTIONS: Be sure electricity is turned off at the main power box before wiring
ELECTRICAL CONNECTIONS
7
1. Four wires are connected to the fan.
Black – this is the “hot” power to run fan.
White – this is the “common” power to run fan and light.
Blue – this is the “hot” power for uplight and light kit.
Green – ground wire (on bracket or downrod).
2. If fan and light are to be connected to the same circuit, black and blue wires can both be connected to house circuit
black wire.
NOTE: The other end of the blue wire, (light circuit) is in the switch housing with a wire nut and label for light kit
attachment. The white wire (common for light kit) is also there.
*

Related product manuals