EasyManua.ls Logo

REXROTH VFC 5610 - Page 10

REXROTH VFC 5610
98 pages
Print Icon
To Next Page IconTo Next Page
To Next Page IconTo Next Page
To Previous Page IconTo Previous Page
To Previous Page IconTo Previous Page
Loading...
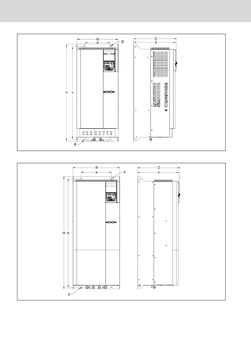
Fig. 1-5: VFC 5610 75K0...90K0 dimensions figure
Fig. 1-6: VFC 5610 110K...132K dimensions figure
4/91
Mechanical Installation
Rexroth Frequency Converter VFC
3610 / VFC 5610
Bosch Rexroth AG R912005518_Edition 16

Table of Contents

Related product manuals