EasyManua.ls Logo

REXROTH VFC 5610 - Page 9

REXROTH VFC 5610
98 pages
Print Icon
To Next Page IconTo Next Page
To Next Page IconTo Next Page
To Previous Page IconTo Previous Page
To Previous Page IconTo Previous Page
Loading...
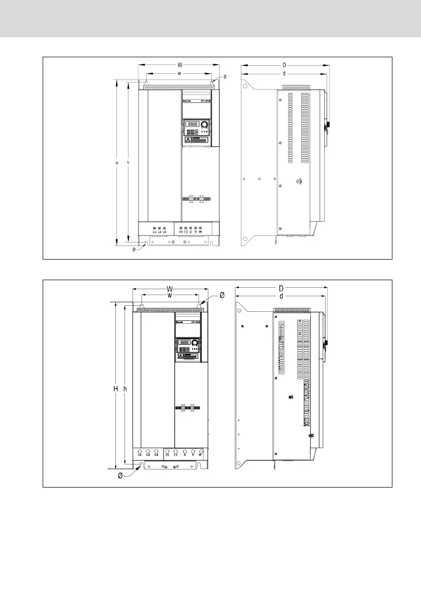
Fig. 1-3: VFC 5610 30K0...37K0 dimensions figure
Fig. 1-4: VFC 5610 45K0...55K0 dimensions figure
Rexroth Frequency Converter VFC
3610 / VFC 5610
3/91
Mechanical Installation
R912005518_Edition 16 Bosch Rexroth AG

Table of Contents

Related product manuals