EasyManua.ls Logo

Rheem 07EAMGR - Horizontal Dimensions and Clearances

Rheem 07EAMGR
12 pages
Print Icon
To Next Page IconTo Next Page
To Next Page IconTo Next Page
To Previous Page IconTo Previous Page
To Previous Page IconTo Previous Page
Loading...
Air
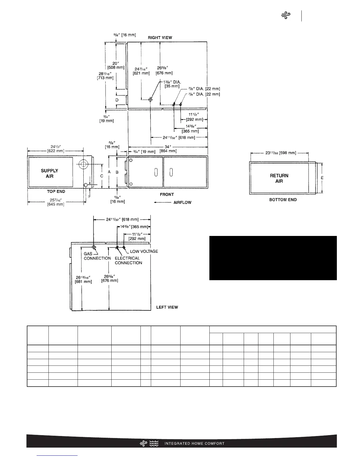
Dimensional Data
RGPQ Series
7
WARNING
THIS FURNACE IS NOT APPROVED
OR RECOMMENDED FOR INSTALLATION
ON ITS BACK, WITH ACCESS DOORS
FACING UPWARDS.
Horizontal Dimensions and Clearance to Combustible Material (inches) [mm]
MODEL
RGPQ-
A B C D E
REDUCED CLEARANCES (IN.) [mm]
05
14 [356] 12
27
/32 [326] 10
5
/8 [270]
11
1
/2 [292]
0
4 [102]
0 1 [25] 3 [76]
6 [152]
LEFT
SIDE
RIGHT
SIDE
BACK TOP FRONT VENT
SHIP. WGTS.
(LBS.) [kg]
85 [38.6]
07
17
1
/2 [445] 16
11
/32 [415] 12
3
/8 [314]
15 [381]
0
3 [76]
0 1 [25] 3 [76]
6 [152]
105 [47.6]
10 (A) 17
1
/2 [445] 16
11
/32 [415] 12
3
/8 [314]
15 [381] 0
3 [76]
0 1 [25] 3 [76]
6 [152]
115 [52.2]
10 (B)
21 [533] 19
27
/32 [504] 14
1
/8 [359]
18
1
/2 [470]
0
0
0 1 [25] 3 [76]
6 [152]
120 [54.4]
12 24
1
/2 [622] 23
11
/32 [593] 15
7
/8 [403]
22 [559] 0 0 0 1 [25] 3 [76]
6 [152]
140 [63.5]
15 24
1
/2 [622] 23
11
/32 [593] 15
7
/8 [403]
22 [559] 0 0 0 1 [25] 3 [76]
6 [152]
150 [68]
F
1
7
/8 [48]
2
1
/2 [64]
2
1
/2 [64]
2
1
/2 [64]
2
1
/2 [64]
2
1
/2 [64]
NOTES: May require a 3" [76 mm] to 4" [102 mm] or 3" [76 mm] to 5" [127 mm] adapter.
May be 0" [0 mm] with type B vent.
May be 1" [25 mm] with type B vent.
Furnaces must be vented in accordance with the National Fuel Gas Code, ANSI Z223.1 and/or Can/CGA-B149 Installation Codes and in accordance with
local codes.
[ ] Designates Metric Conversions
Horizontal Dimensions

Other manuals for Rheem 07EAMGR

Related product manuals