EasyManua.ls Logo

Rheem 80PS10EDR - Page 13

Rheem 80PS10EDR
36 pages
Print Icon
To Next Page IconTo Next Page
To Next Page IconTo Next Page
To Previous Page IconTo Previous Page
To Previous Page IconTo Previous Page
Loading...
13
a. One square inch for each 3000
BTUH of the total input rating of all
equipment located in the enclosure,
AND
b. Not less than the sum of the areas
of all vent connectors in the confined
space.
IMPORTANT:
If the furnace is in a
location with an exhaust fan, there
must be sufficient ventilation to prevent
the exhaust fan from creating a
negative pressure in the room.
Combustion air openings must NOT
BE RESTRICTED in any manner.
CONSULT LOCAL CODES FOR
SPECIAL REQUIREMENTS.
B: Method 1
Provide two permanent openings,
one located within 12 inches of the
top and one located within 12
inches of the bottom of the
enclosure. Each opening shall
communicate directly, or by ducts,
with the outdoors or spaces (crawl
or attic) that freely communicate
with the outdoors.
a. Where directly communicating
with the outdoors or where
communicating to the outdoors
through VERTICAL DUCTS,
each opening shall have a
minimum free area of 1 square
inch for each 4000 BTUH of total
appliance input rating in the
enclosure. Here are typical duct
sizes:
b. Where communicating with
outdoors through HORIZONTAL
DUCTS, each opening shall have
a minimum free area of 1 square
inch for each 2000 BTUH of total
input rating for all equipment in
the enclosure. Here are typical
duct sizes:
B: Method 2
One permanent opening, located within
12 inches of the top of the enclosure,
shall be permitted where the
equipment has clearances of at least 1
inch from the sides and back and 6
inches from the front of the appliance.
The opening shall directly
communicate with the outdoors or
communicate through a vertical or
horizontal duct to the outdoors or
spaces (crawl or attic) that freely
communicate with the outdoors and
have a minimum free area of:
VERTICAL OUTDOOR AIR
OPENING DIMENSIONS
BTUH Free Area Round
Input Each Opening Pipe Size
50,000 12.50 sq. inches 4
75,000 18.75 sq. inches 5
100,000 25.00 sq. inches 6
125,000 31.25 sq. inches 7
150,000 37.50 sq. inches 7
HORIZONTAL OUTDOOR AIR
OPENING DIMENSIONS
BTUH Free Area Round
Input Each Opening Pipe Size
50,000 25.00 sq. inches 6
75,000 37.50 sq. inches 7
100,000 50.00 sq. inches 8
125,000 62.50 sq. inches 9
150,000 75.00 sq. inches 10
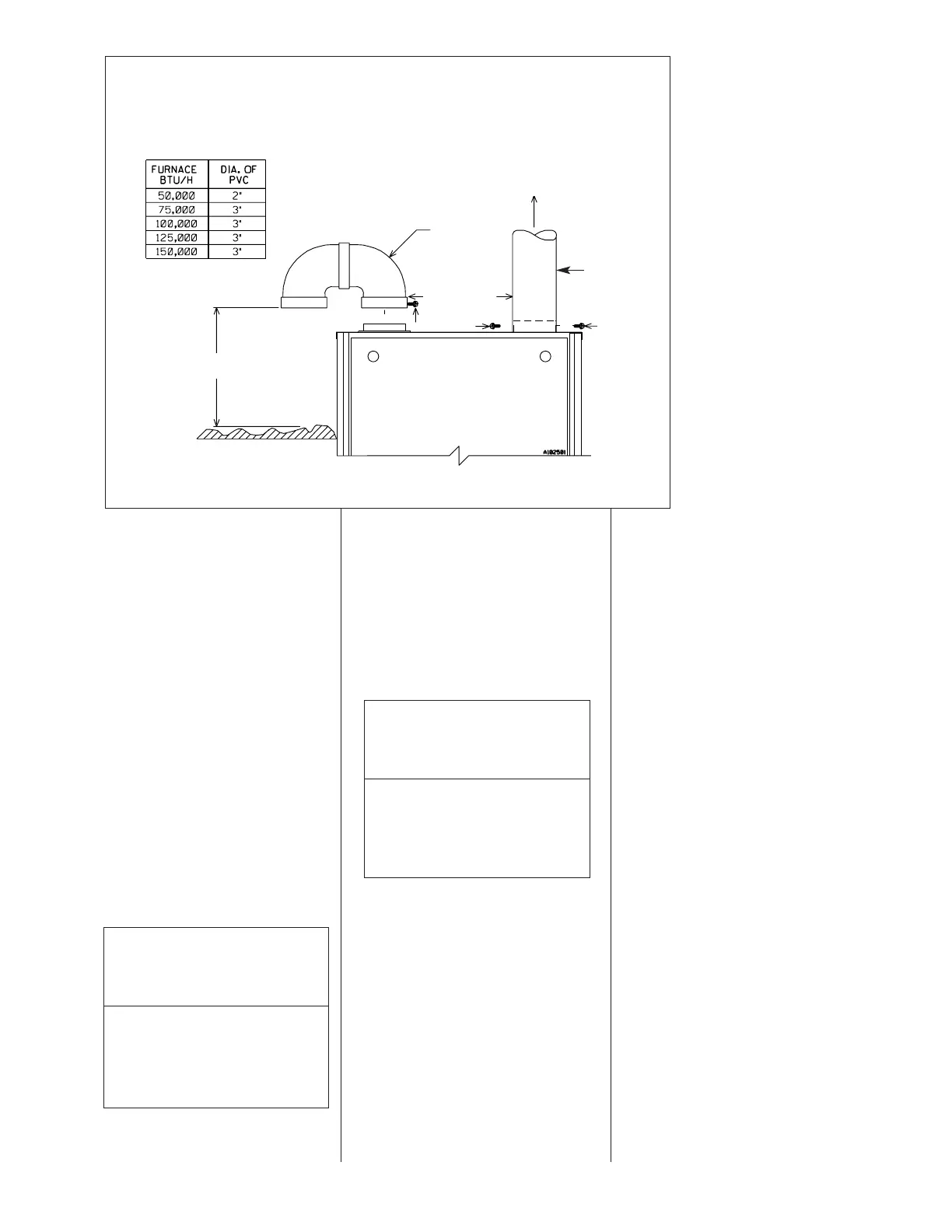
FIGURE 9
COMBUSTION AIR FITTING – NON-ATTIC COMBUSTION AIR PULL, 80PS ONLY
ATTACH OPTIONAL DOUBLE ELBOW TO TOP INLET
AIR OPENING TO PREVENT ACCIDENTAL BLOCKAGE
OF INTAKE OPENING. THIS IS NOT A REQUIREMENT.
(SEE PREVIOUS PAGE.) SINGLE ELBOW IS ALLOWED
BUT MAY NOT PREVENT DEBRIS FROM BEING
DROPPED INTO THE FURNACE.
GROUND OR
SHELF SURFACE
6" MIN.
6" MININUM
CLEARANCE
PVC
DOUBLE
ELBOW
#8 SCREWS
METAL FLUE
PIPE ONLY
EXHAUST
#8 SCREWS

Related product manuals