EasyManua.ls Logo

RIB NORMAL - Barrier Installation and Adjustment; Barrier Assembly Procedure; Limit Switch Adjustment

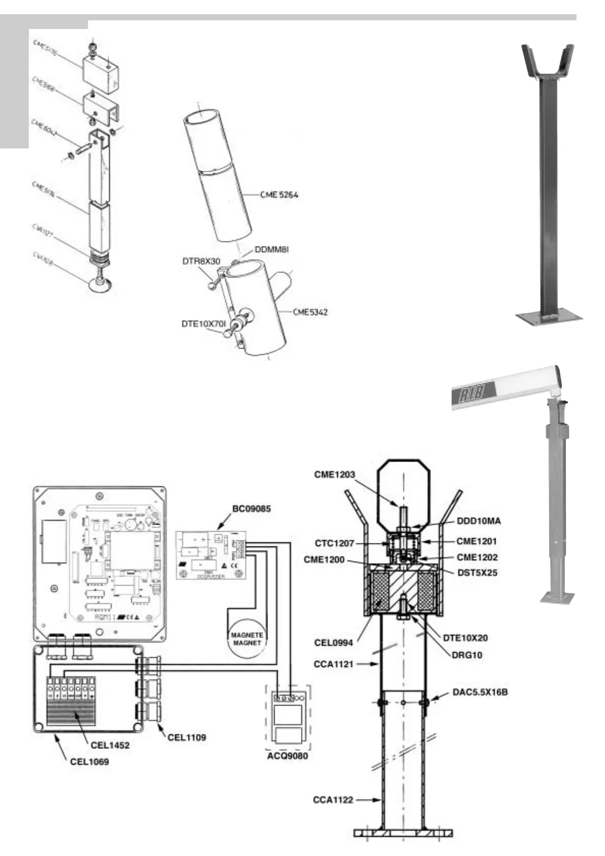
RIB NORMAL
Print Icon
To Next Page IconTo Next Page
To Next Page IconTo Next Page
To Previous Page IconTo Previous Page
To Previous Page IconTo Previous Page
Loading...
ACG9130
Colonna di supporto
Fourche de support
Fork type support column
Stützgabel
ACG8070
Colonna con blocco elettromagnetico
Fourche magnetique avec Degausser
Column with electromagnetic lock
Säule mit Magnet mit Degausser
Pag. 32 di 36
I
F
GB
D
ACG8281
Paletto pendulo per asta ottagonale
Fourche escamotable pour Lisse octogonale
Hanging support for octagonal boom arm
Stützpendel für Achteckigen Baum
ACG8496
Asta tonda Ø 110 mm senza mozzo
Lisse Ø 110mm th. 3mm sans moyeu
Boom arm Ø 110 mm th. 3 mm w/out fixing hub
Baum Ø110mm th.3mm ohne nabe
ACG8538
Mozzo per asta tonda
Moyeu pour lisse
Fixing hub for boom arm
Nabe für baum

Other manuals for RIB NORMAL

Related product manuals