EasyManua.ls Logo

RIB NORMAL - Page 17

RIB NORMAL
Print Icon
To Next Page IconTo Next Page
To Next Page IconTo Next Page
To Previous Page IconTo Previous Page
To Previous Page IconTo Previous Page
Loading...
ENGLISH
Pag. 17 di 36
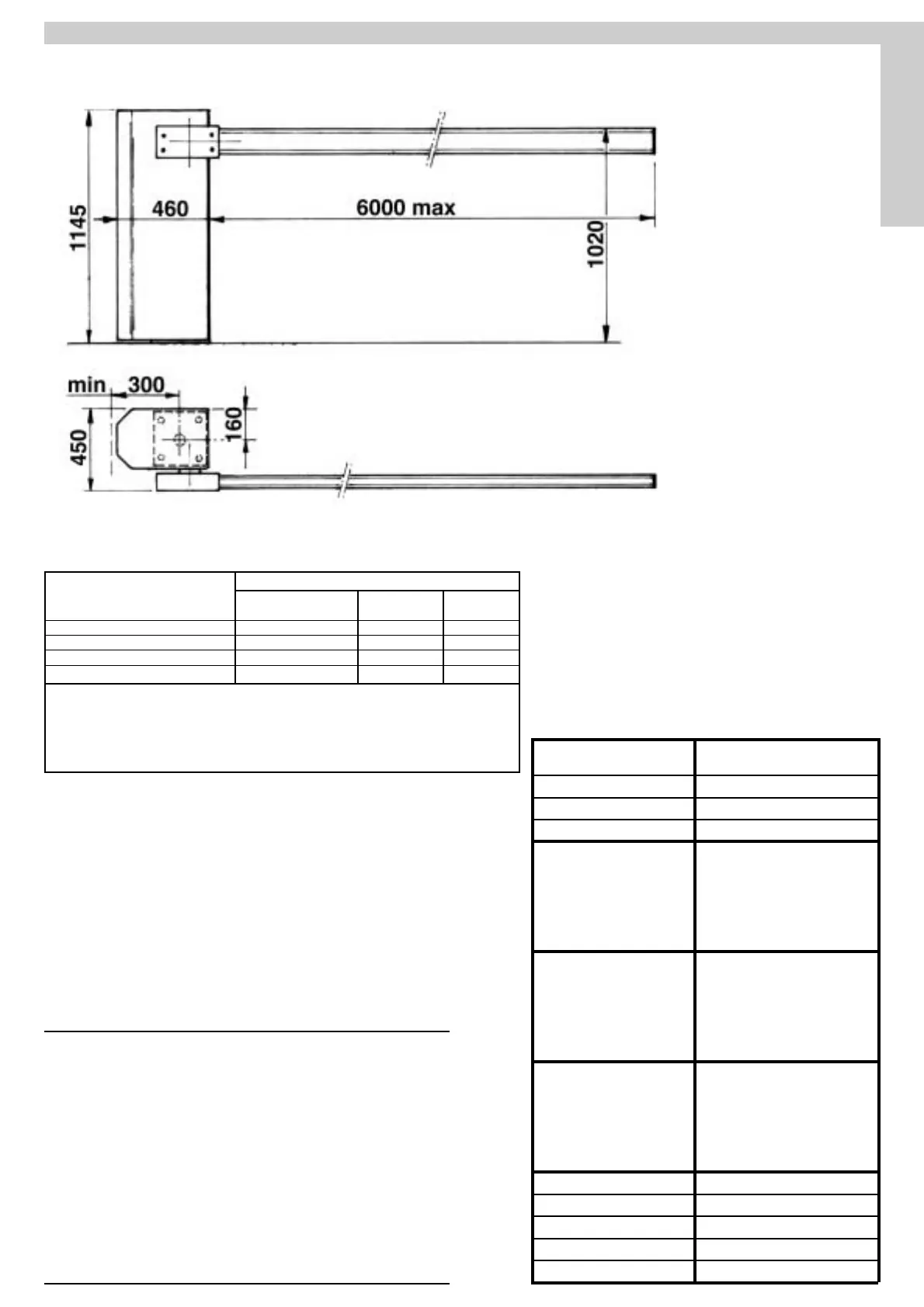
NORMAL barrier
- Photoelectric cells
- Galvanized column for P.E. cells
- Strip with Photo electric cells
- Magnetic loop
- Key selector
- Tuned aerial
- Emergency button
E
N
G
L
I
S
H
TECHNICAL
DATA
Max. boom lenght
Opening time
Max. torque
EEC Power supply
Motor capacity
Power absorbed
Capacitor
No. cycles
Lubrification
Weight of electroreducer
Protection IP
Noise
Volume
NORMAL
m. 6
s11
Nm 300
230V~ 50Hz
W 130
A0,6
µF6,3
1000 - 15s/2s
Power supply
Motor capacity
Power absorbed
Capacitor
No. cycles
Power supply
Motor capacity
Power absorbed
Capacitor
No. cycles
220V~ 60Hz
W 130
A0,6
µF6,3
1000 - 15s/2s
110V~ 60Hz
W 250
A1,7
µF25
300 - 15s/2s
IP MELLANA 100
Kg 145
db <70
m
3
0,237
IP 557
GEARMOTOR TECHNICAL CHARACTERISTICS
Lh./rh.irreversible gearmotor used for raising and lowering barrier poles
up to 6 m. long. The upright can be supplied in a painted galvanized
version.
The barrier boom can be supplied as one unjointed length or, where
headroom is restricted, it can be requested in an articulated version if
you specify the height of the obstruction above road level (Fig. 2).
Besides it can be supplied in one piece with hanging rack (Fig. 3, 5).
The barrier boom is designed to be fitted with a pneumatic or photocell
safety strip (Fig. 4).
ATTENTION: It is compulsory to conform the barrier characteristics to
the current regulations and laws.
Fig.1
COMMAND TYPE USE OF THE SHUTTER
Skilled persons Skilled persons Unrestricted use
(out of a public area*) (public area)
with manned operation A B
with visible impulses (e.g. sensor) C C C e D
with not visible impulses (e.g. remote control device)
C C e D C e D
automatic C e D C e D C e D
* a typical example are those shutters which do not have access to any public way
A: Command button with manned operation (that is, operating as long as activated), like code ACG2020
B: Key selector with manned operation, like code ACG1010
C: Safety edges, like code ACG3010
D: Photocells, like code ACG8026
Parts to install meeting the EN 12453 standard

Other manuals for RIB NORMAL

Related product manuals