EasyManua.ls Logo

RIB P1 - Page 37

RIB P1
Print Icon
To Next Page IconTo Next Page
To Next Page IconTo Next Page
To Previous Page IconTo Previous Page
To Previous Page IconTo Previous Page
Loading...
37
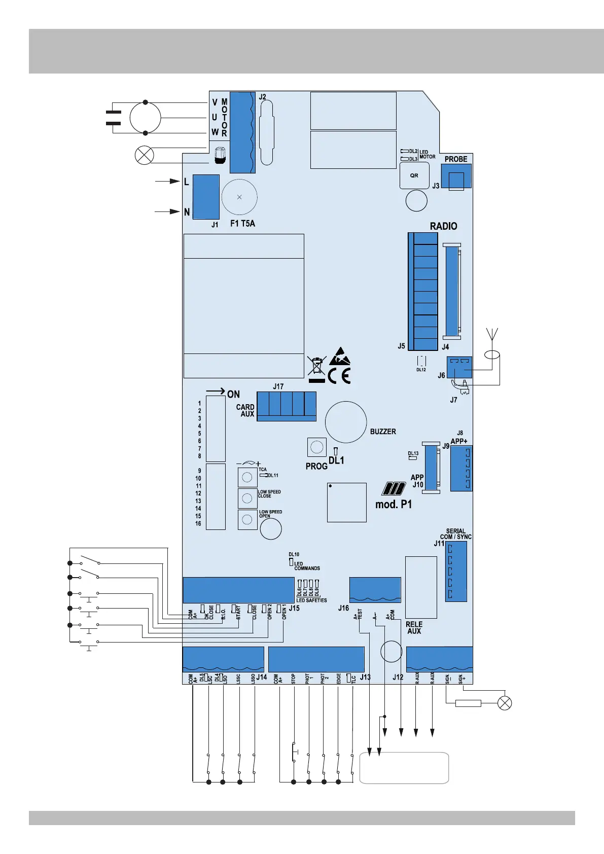
CONEXIONES ELÉCTRICAS
M
ANTENA
433 MHz
ARMADURA
ANTENA
CIERRE
ABRE
COMÚN
INTERMITENTE
230Vac 40W
ALIMENTACIÓN
230Vac 50 Hz
RELOJ
ABRE
2
CIERRE
OK CIERRE
SOLO COMANDO
ABRE
1
24Vdc 0,4A ±15%
24Vdc 0,4A ±15%
A+TEST / A-
AUTOPRUEBA
FOTOCÉLULAS
LED
R=2,2K 1/4W
FINAL DE CARRERA CIERRE
FINAL DE CARRERA APERTURA
FINAL DE CARRERA CIERRE LENTA
FINAL DE CARRERA APERTURA LENTA
COMÚN
FOTOCÉLULAS
1
STOP
SENSOR MAGNÉTICO - ENTRADA
FOTOCÉLULAS 2
BANDA
COMÚN
COMÚN
COMÚN
700 W MAX
E
S

Related product manuals