EasyManua.ls Logo

RIB RAPID PARK - Page 40

RIB RAPID PARK
Print Icon
To Next Page IconTo Next Page
To Next Page IconTo Next Page
To Previous Page IconTo Previous Page
To Previous Page IconTo Previous Page
Loading...
40
40
TASTSCHALTER «ÖFFNEN 1» (Com - Open 1)
mit Uhr-Funktion
    
   
    
     

     



UHR-FUNKTION
    


    

EINSATZMODALITÄTEN


     
      
        
     




      
      

TASTSCHALTER «SCHLIESSUNG» (Com - Close)

STEUERTASTE FÜR SCHRITTWEISEN BETRIEB (Com - K Button)
DIP5 - OFF => 

DIP5 - ON =>        
      
       
        


FERNSTEUERUNG
DIP4 - OFF => 

DIP4 - ON =>        
      
       
        


AUTOMATISCHE SCHLIESSUNG (DIP 3)
        
      
         


FUNKTIONSWEISE DER STEUERZUSATZEINRICHTUNGEN IM STANDARDBETRIEB (DIP 6 OFF)
BEENDET DIE PROGRAMMIERUNG (DIE LED-ANZEIGE «DL1» GEHT
VON BLINKLICHT ZU DAUERLICHT ÜBER).UM DIE PROGRAMMIERUNG
ZU WIEDERHOLEN, IST «DIP AUF «AU ZU STELLEN, DIE
SCHRANKE IST MITTELS DES VERFAHRENS: TARIERUNG
MOTORLAUFVERLANGSAMUNG” ZU SCHLIESSEN UND DIE OBEN
BESCHRIEBENE PROGRAMMIERUNG IST ZU WIEDERHOLEN.
E - PROGRAMMIERUNG FUNKCODES
(MAX. 60 CODES - NUR MODELL PARK 230V CRX)
(MAX. 60 CODES - NUR MODELL PARK 230V CRX)
       

 
 

     
       

     

 


 
 
VERFAHREN ZUR VOLLSTÄNDIGEN LÖSCHUNG DER FUNKCODES
       


         

           
         

         
       

 

ANZEIGE «SPEICHERKAPAZITÄT ERSCHÖPFT»
       


             

       
         

 

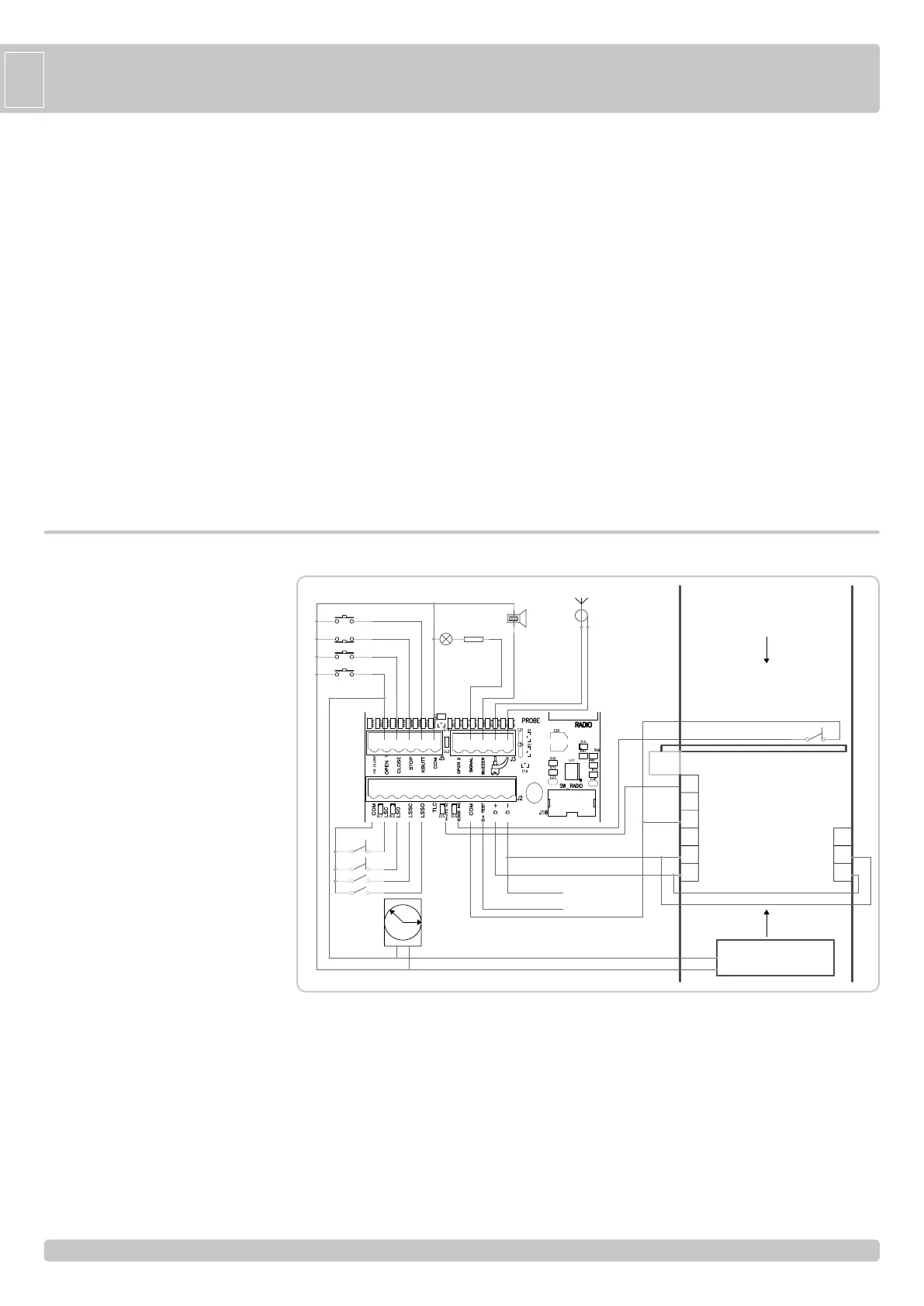
D
_
+
+
_
_
+
+
NC
D-
+
D
+D
NO
COM
SS
D-
-
+
SCHRITT BEI SCHRITT
STOP
SCHLIESSE
ÖFFNE 1
ANTENNE
LED
BUZZER
BEFLECHTUNG
ANTENNE
EINFAHRT
SENSOR MIT MAGNETSPULE
AUSFAHRT
R=2K2
TIMER
LSC
LSO
LSSC
LSSO
RIPPE
12 Vdc max 0,5A für ZUBEHÖRE
12 Vdc max 0,5A für AUTOTEST FÜR
GELENKRIPPE

Related product manuals