EasyManua.ls Logo

Riello Array AR 1500 - Page 30

Riello Array AR 1500
68 pages
Print Icon
To Next Page IconTo Next Page
To Next Page IconTo Next Page
To Previous Page IconTo Previous Page
To Previous Page IconTo Previous Page
Loading...
30
SHUTDOWN
30
APPENDIX
APPENDIX
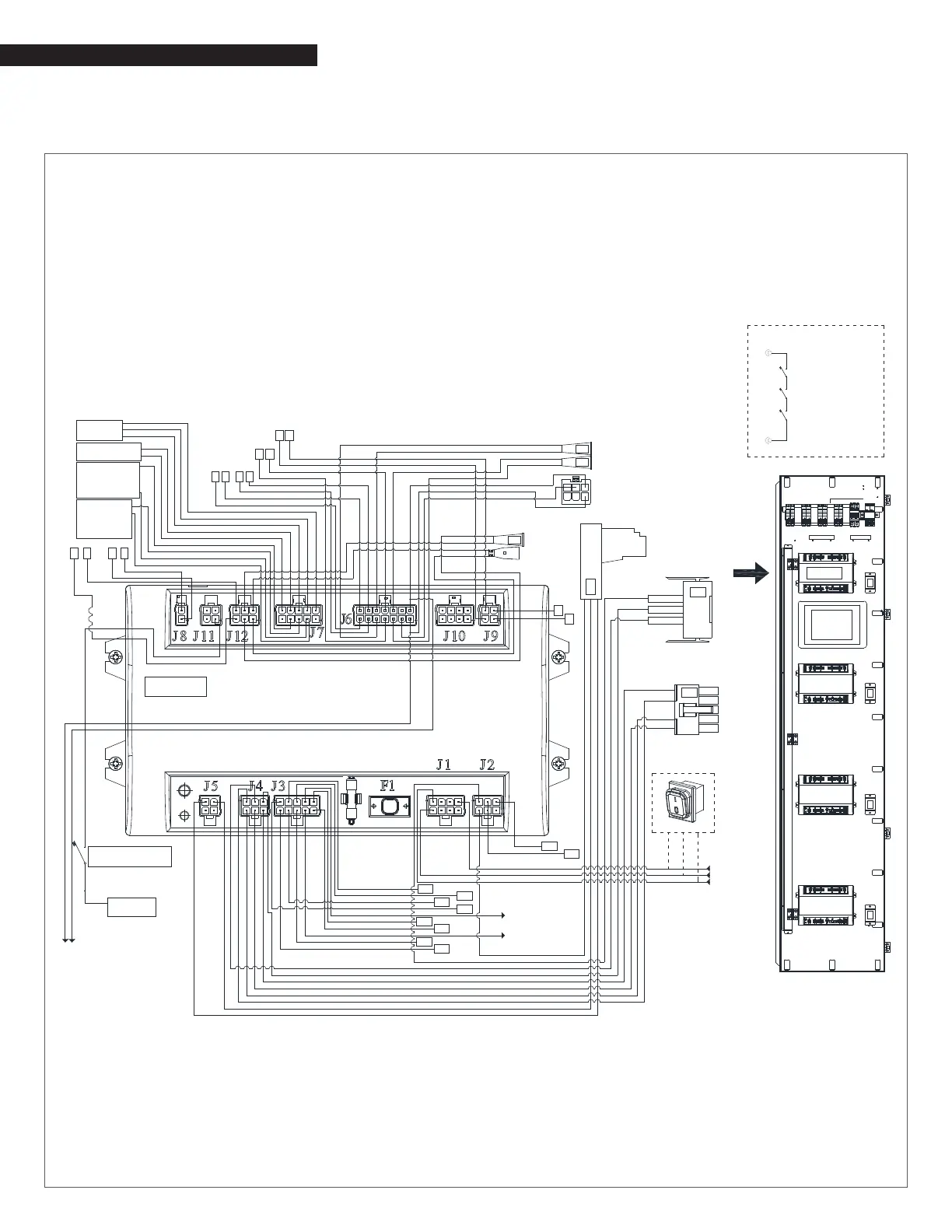
MASTER
J3-4 b
J3-9 h
J3-3 bl
J3-8 w
J2-2 gr
J3-2 bl
J3-5 bl
J3-10 w
J2-3 gr
J1-1 w
J1-5 bl
J1-4 gr
J3-7 w
J3-1 b
J9-2 b
J9-4 h
J6-11 h
J6-4 b
J6-6 b
J6-13 h
J6-7 b
J6-14 h
FLUE SENSOR
204
203
RETURN T. SENSOR
EXCON 4201
SERVICE DISPLAY
J6-5 b
J6-12 h
J6-10 h
J6-3 b
J6-8 h
J6-1 b
J6-2 bl
FLOWMETER
J7-6 b
J7-7 bl
J7-8 h
MIN+MAX GAS
J7-9 b
J7-10 h
J7-4 h
J7-3 h
J7-2 b
J7-2 b
WATER PRESSURE
FLUE PRESSURE
J8-2 h
J8-1 b
213
GAS VALVE
J5-1 bl
J5-2 w
J2-4 gr
FAN
216
J4-2 bl
J4-3 w
J2-1 gr
5
4
2
1
J4-1 br
J4-4 h
J4-5 grey
J4-6 bl
211
PWM
PRESSURE SWITCH
SWITCH
SWITCH
+
CONDENSATE
PRES. SWITCH
FAN
J12-3
J11-1
LWCO
J12-1 b
J12-4 h
J12-5 h
J12-2 b
202
212
WATER THERM.
UNIT FLOW TEMP.
SAFETY LIMIT
(*)
J9-1
J9-3
J3-6
J12-6
AIR PRESSURE SWITCH
4
3
12
5 6
7
8
9 10
1112
13
14
101
102
103
104
106
107
110
111
112
113
POWER SUPPLY
PARALLEL CONNECTION
RELAY R1-A1
RELAY R1-A2
PARALLEL CONNECTION SLAVE 2/3/4
ARGUS LINK
MASTER
WATER PRESSURE SWITCH
CONDENSATE PRESS. SWITCH SLAVE 4
CONDENSATE PRESS. SWITCH SLAVE 8
(*)
J7-2
J7-4
J6-8
J6-1
WIRING DIAGRAM - MASTER

Related product manuals