EasyManua.ls Logo

Riello Array AR 1500 - Page 32

Riello Array AR 1500
68 pages
Print Icon
To Next Page IconTo Next Page
To Next Page IconTo Next Page
To Previous Page IconTo Previous Page
To Previous Page IconTo Previous Page
Loading...
32
SHUTDOWN
32
APPENDIX
APPENDIX
2.75”
63.45”
67.2”
60.8”
10.75”
Ø1.5”
50.36”
7.08” 9.63”
7.29”
33.3”
Ø3”
7.47” 9.48”
Ø6”
Ø1.57”
Ø1.57”
5.98”
12.1” 9.44”
Ø3”
Ø6”
8.85”
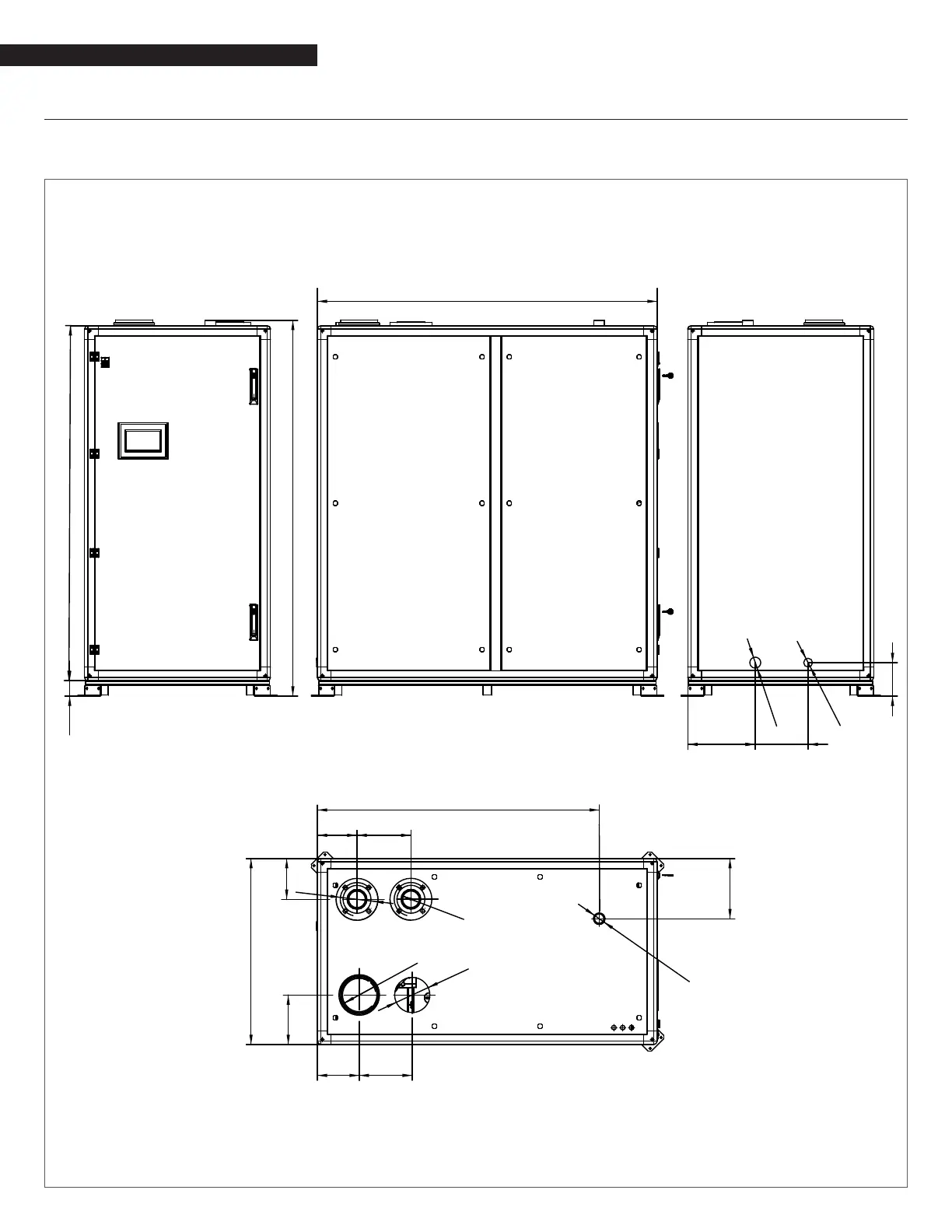
APPENDIX B - SIZE AND CONNECTIONS
ARRAY AR 1000, AR 1500
Dimensions are in inches

Related product manuals