EasyManua.ls Logo

Riello Array AR 1500 - Page 52

Riello Array AR 1500
68 pages
Print Icon
To Next Page IconTo Next Page
To Next Page IconTo Next Page
To Previous Page IconTo Previous Page
To Previous Page IconTo Previous Page
Loading...
52
SHUTDOWN
52
APPENDIX
APPENDIX
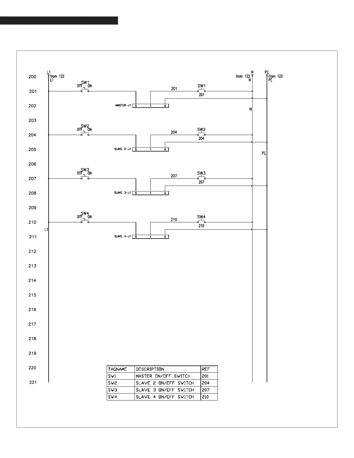
MASTER SLAVE POWER

Related product manuals