EasyManua.ls Logo

Riello Array AR 1500 - Page 59

Riello Array AR 1500
68 pages
Print Icon
To Next Page IconTo Next Page
To Next Page IconTo Next Page
To Previous Page IconTo Previous Page
To Previous Page IconTo Previous Page
Loading...
59
SHUTDOWN
59
APPENDIX
APPENDIX
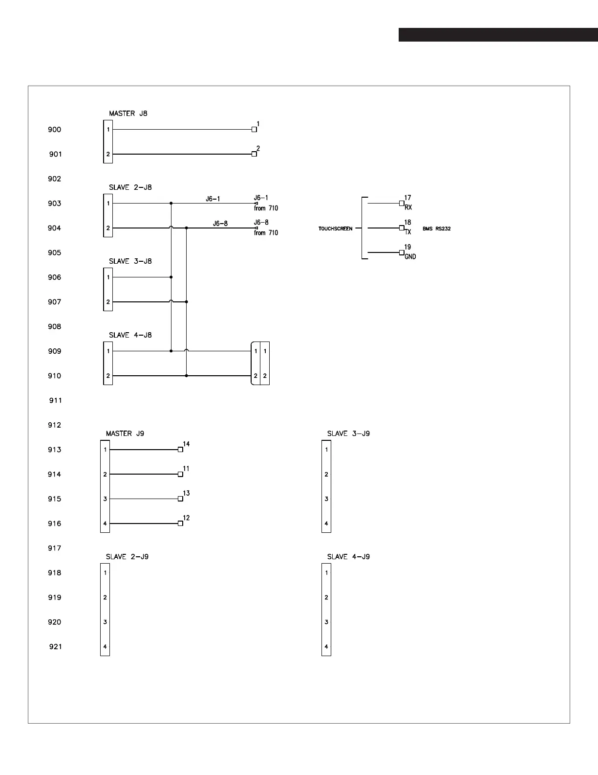
J8-J9 CONNECTIONS

Related product manuals