EasyManua.ls Logo

Rinnai RU80E - Page 2

Rinnai RU80E
2 pages
Print Icon
To Previous Page IconTo Previous Page
To Previous Page IconTo Previous Page
Loading...
Rinnai Corporation • 103 International Drive • Peachtree City, GA 30269 • Toll-Free: 1-800-621-9419 • Fax: 678-829-1666 • www.rinnai.us
MC-91-2 (included)
Deluxe controller: MC-100V-1US (optional)
Bathroom controller: BC-100V-1US (optional)
MCC-91-2 (optional; for hydronic and commercial applications)
Non-polarized two-core cable, minimum 22 AWG
Flame failure - Flame Rod
Boiling protection
Combustion fan rpm check
Over current - glass fuse
Top of heater - 12 inches
Front (Panel) - 24 inches
Front (Exhaust) - 24 inches
Top of heater - 2 inches
Front (Panel) - 0 inches *
Front (Exhaust) - 24 inches
Natural Gas: min 5” W.C. max 10.5” W.C.
Propane Gas: min 8” W.C. max 13.5” W.C.
Natural Gas: high fire 1.9” W.C. low fire 0.46” W.C.
Propane Gas: high fire 2.1” W.C. low fire 0.50” W.C.
Complies with South Coast Air Quality Management District 14 ng/J or
20 ppm NOx emission levels
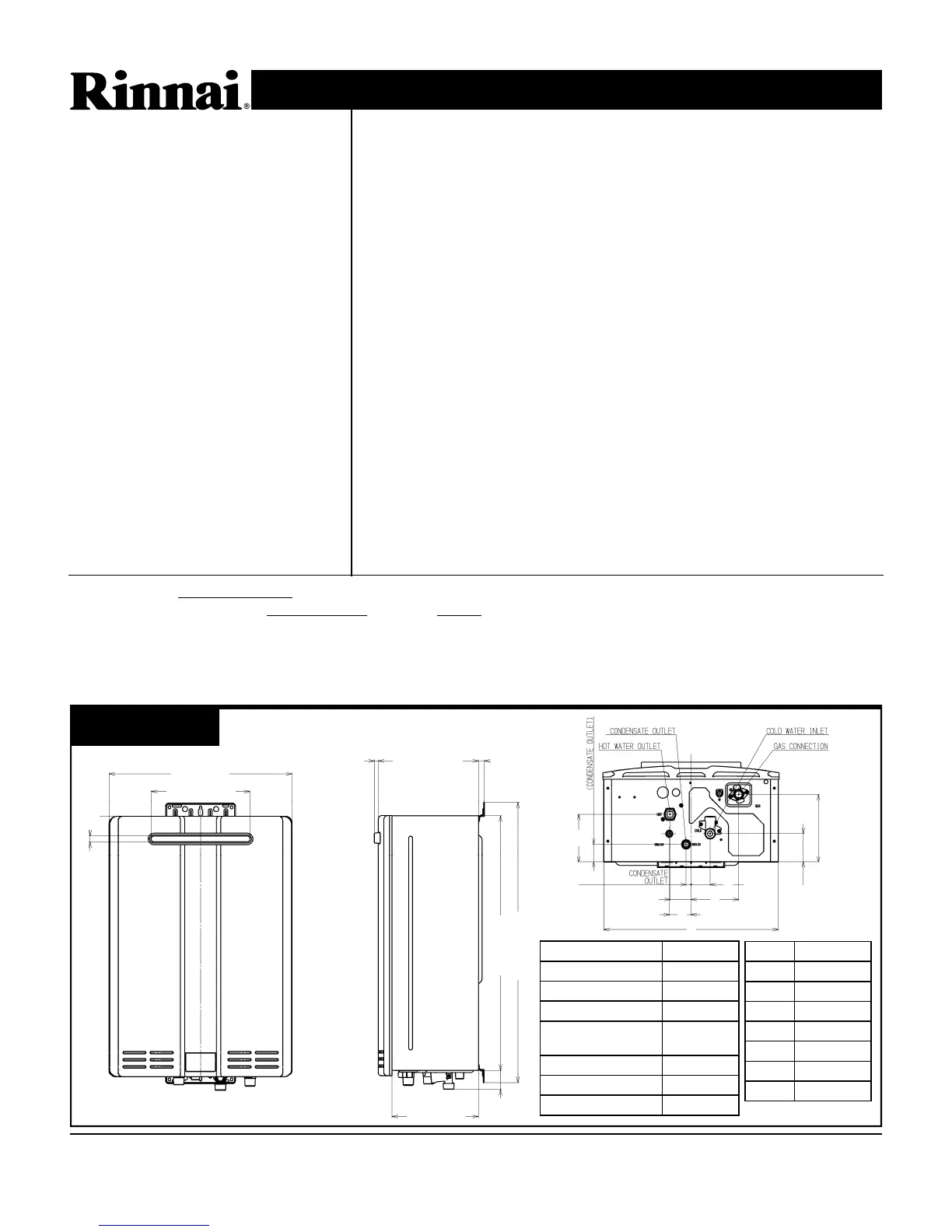
DIMENSIONS
WEIGHT: 70.5 lb (32 kg)
Controller
Controller Cable
Safety Devices
Clearances from Combustibles
Clearances from Non-combustibles
* 24 inches required for serviceability
Min. / Max. Gas Supply Pressure
Manifold Gas Pressure (inches W.C.)
NOx
Remaining flame (OHS)
Thermal fuse
Automatic frost protection
Back of heater - 0 inches
Bottom of heater - 12 inches
Sides of heater - 6 inches
Back of heater - 0 inches
Bottom of heater - 2 inches
Sides of heater - 1/8 inch
DIM Inches (mm)
A (GAS) 1.6 (40.2)
A (COLD) 2.0 (50.2)
A (HOT) 1.6 (41.2)
A (CONDENSATE
OUTLET)
0.9 (22.4)
B 5.0 (127.2)
C 1.9 (47.8)
D 0.52 (13.3)
B
C
I
J
D
E
F
G
H
K
10.1 (257.5)
28.4 (721.6)
25.7 (654)
8.7 (222) A
0.4 (10.1) 0.6 (15)
18.5 (470)
10.0 (253.8)
0.6 (15) 2.0 (50)
RU80e (KB2530WD)
DIM Inches (mm)
E 2.2 (56.3)
F 2.3 (58.3)
G 5.0 (127.2)
H 2.0 (50)
I 3.0 (76)
J 7.1 (179)
K 18.3 (466)
Heat exchanger: 12 years* for residential, 10 years for residential and space heating, and 5 years* for
commercial; All other parts: 5 years*; Labor: 1 year;
(* 3 years if used as a circulating water heater within a circulation loop, when the water heater is in
series with a circulation system and all circulating water flows through the water heater, and where an
aquastat / thermostat, timer, or an on-demand recirculation system is not incorporated.)
Refer to the manual for complete warranty information.
Limited
Warranty

Related product manuals