EasyManua.ls Logo

Rivacold FAH003Z001 - Page 32

Rivacold FAH003Z001
35 pages
Print Icon
To Next Page IconTo Next Page
To Next Page IconTo Next Page
To Previous Page IconTo Previous Page
To Previous Page IconTo Previous Page
Loading...
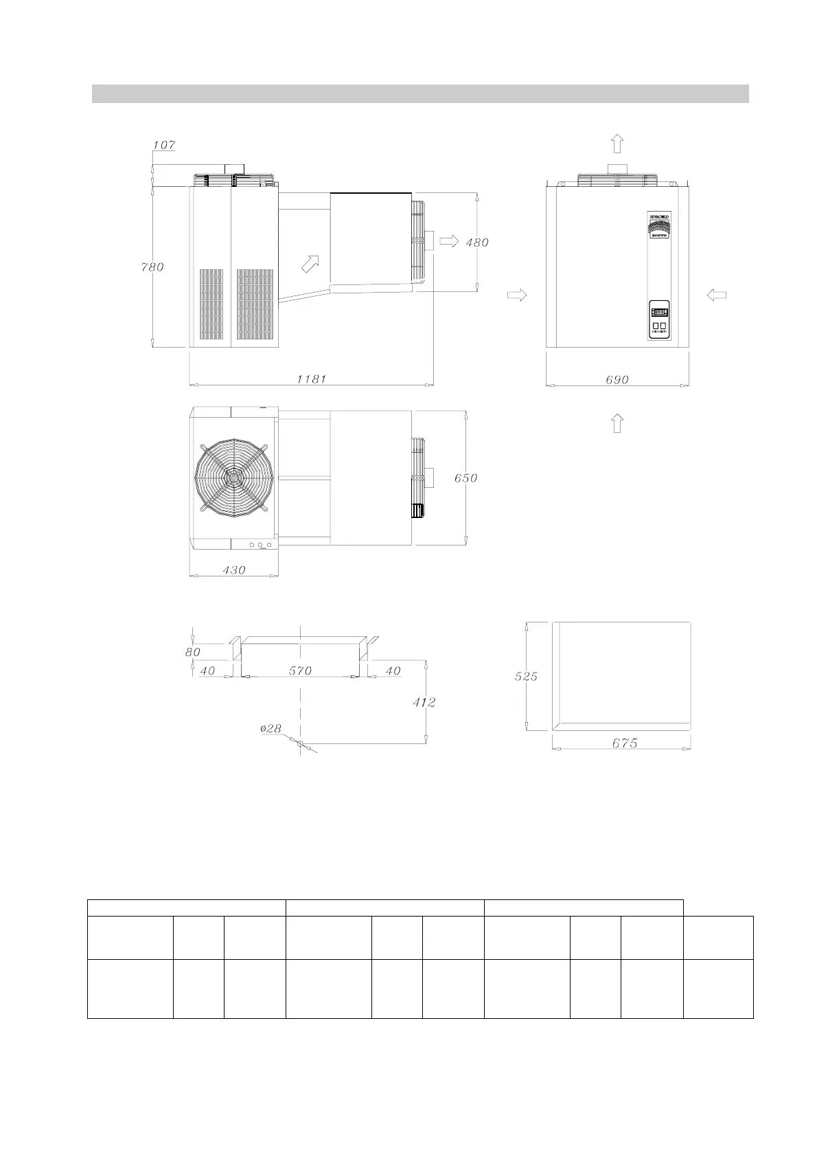
BLOCKSYSTEM FA 32 REV. 02 02/03
Fig. 8 (1x350)
AT TN BT
Mod.
Net.
Weight
[Kg]
Noise
10m
[dBA]
Mod.
Net.
Weight
[Kg]
Noise
10m
[dBA]
Mod.
Net.
Weight
[Kg]
Noise
10m
[dBA]
Fastening
screws
FAH034Z002
FAH040Z002
98
102
40
40
FAM034Z002
FAM040Z002
98
109
40
42
FAL020Z002
FAL024Z002
106
111
42
46
Self-tap.
4.8x32
Saddle
Chavauchante
Huckepack
Plug-in
Tampon
Stopfer