EasyManua.ls Logo

RM Cylinders Intercyl - Page 6

Default Icon
22 pages
Print Icon
To Next Page IconTo Next Page
To Next Page IconTo Next Page
To Previous Page IconTo Previous Page
To Previous Page IconTo Previous Page
Loading...
ISSUE 2016 Rev 1 - Installation Manual
3
RM Cylinders
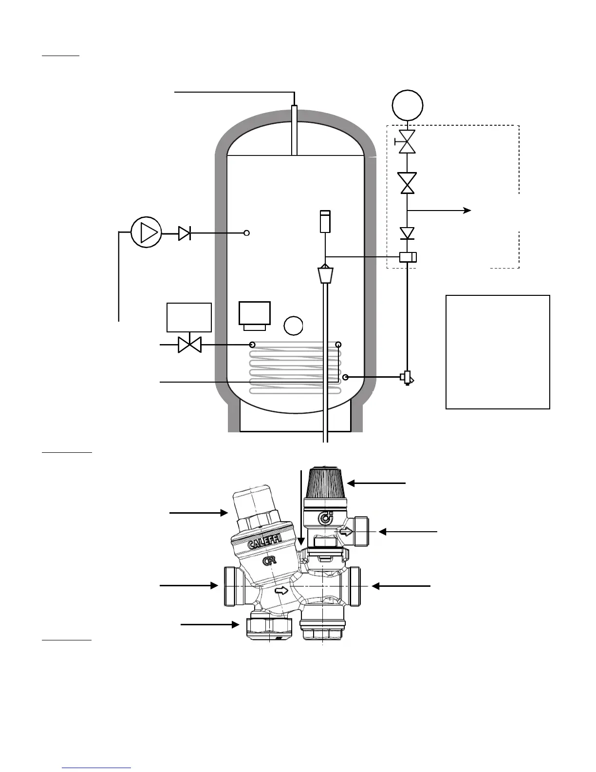
Schematic
Cold Inlet Set
Water Supply
It is recommended that the maximum on-site water demand be assessed and the water supply be tested to ensure it can meet these
requirements.
It is important to note that a high mains water pressure will not always guarantee high flow rates. Ensure a site pressure reading is taken under
working conditions, as a high-pressure reading from static conditions may not be indicative of the working pressure. The minimum mains
water supply requirements should be 0.15MPa (1.5 bar) working pressure, and a 20 litres per minute flow rate Where mains inlet pressures
Hot Outlet
Non Return
Valve
Pump
Temperature
and Pressure
Relief Valve
Secondary
Return
Boiler Flow
Boiler Return
2 Port
Valve
Tundish
Dual Stat
Standard indirect
cylinder shown,
please repeat
installation procedure
for as many coils as
there are present on
the unit. Different
heat sources may
have different
installation
requirements
Cold Main
Isolating Valve
Pressure
Reducing Valve
Balanced
Cold
Connection
Non Return
Valve
Cold Water
Inlet Set
Drain Via
Cold Inlet
5
Internal Check Valve
Expansion Relief Valve
Balanced Cold
Take Off
Cold Mains In
Pressure Reducing Valve
(including Line Strainer)
Discharge to Tundish
Cold Supply to Cylinder