EasyManua.ls Logo

RM 900 Series - Úvod; Instalační Výkres

RM 900 Series
Print Icon
To Next Page IconTo Next Page
To Next Page IconTo Next Page
To Previous Page IconTo Previous Page
To Previous Page IconTo Previous Page
Loading...
ÚVOD
Překlad návodu z původního jazyka
3
1 ÚVOD
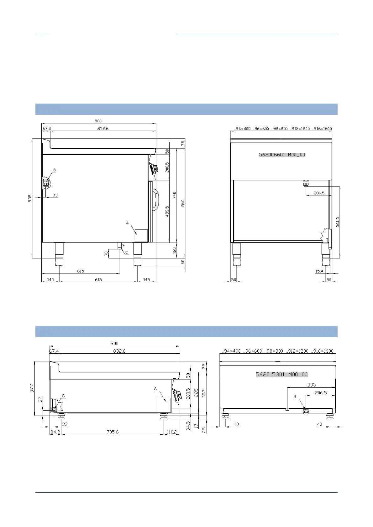
1.1 Instalační výkres
OBR. 1 CW-9E..
A Typový štítek
B Elektrické zapojení
OBR. 2 CWT...
A Typový štítek
B Elektrické zapojení

Table of Contents