EasyManua.ls Logo

Robin RGX305 - Page 73

Robin RGX305
75 pages
Print Icon
To Next Page IconTo Next Page
To Next Page IconTo Next Page
To Previous Page IconTo Previous Page
To Previous Page IconTo Previous Page
Loading...
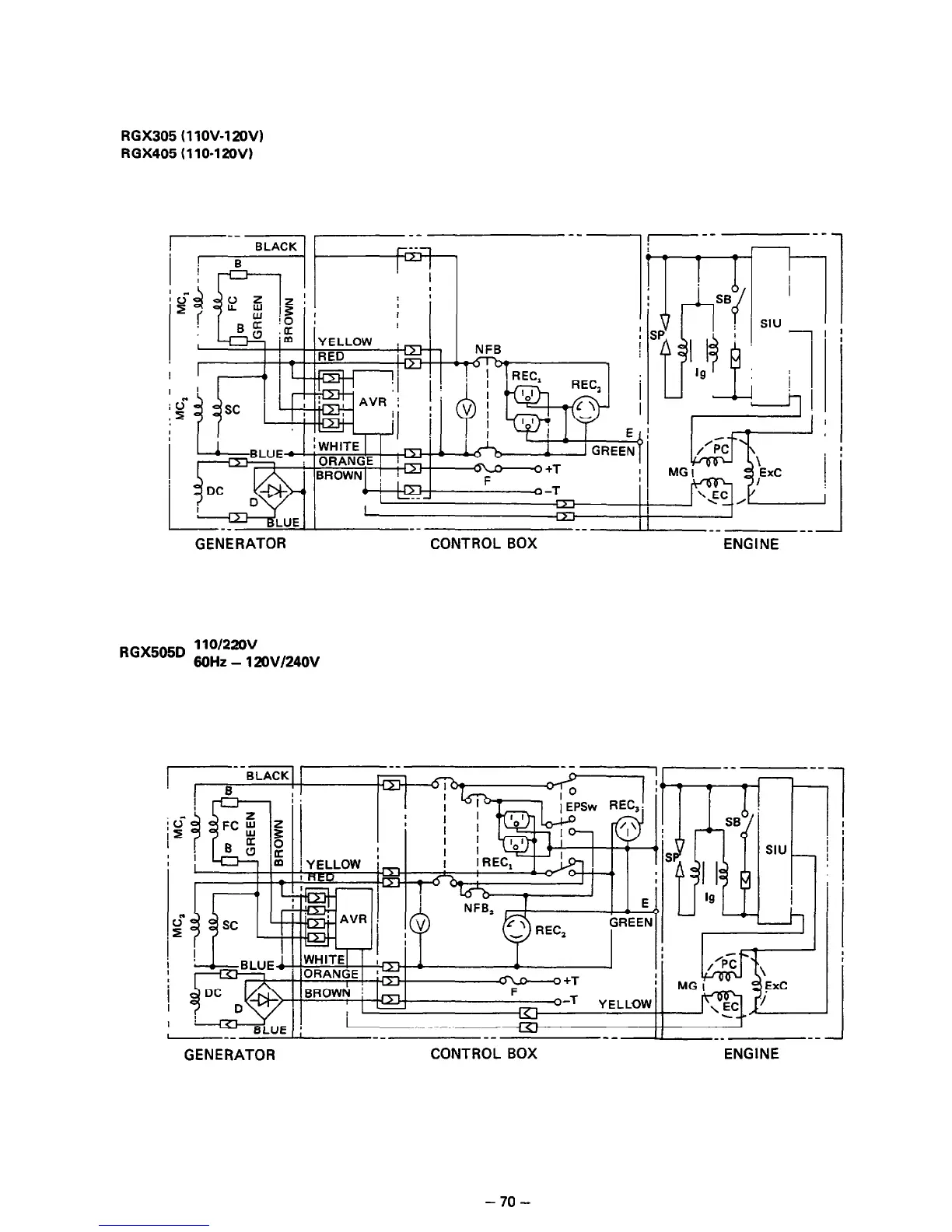
RGX305 (I IOV-I 2OVl
RGX405 (IlO-12OV)
7
--
---If-- I
--
-___
---
j APT
-__
ENGINE ---
REC,
pETa
‘0’
REC,
c\
I I
I
I i
I
E
11 *Y - IGREEN
“I” ; !
A+T
Im
F
IL-
o-T
tiLUE1 i u
I
-- --
GENERATOR CONTROL BOX
RGX505D ;;~m&,v,240v
---
BLACK/ I--
--1
I
! i
I iL
---
7-7-r --
-O’m ;EPSw REC,; 11 (
] 1 !
i
d
,G \
I
!?!I
EXC
\EC
Y
I
---
----
-- --
--A-- -- -
GENERATOR
CONTROL BOX ENGINE
MG
- 70 -

Related product manuals