EasyManua.ls Logo

Robin RGX305 - Circuit Diagram

Robin RGX305
75 pages
Print Icon
To Next Page IconTo Next Page
To Next Page IconTo Next Page
To Previous Page IconTo Previous Page
To Previous Page IconTo Previous Page
Loading...
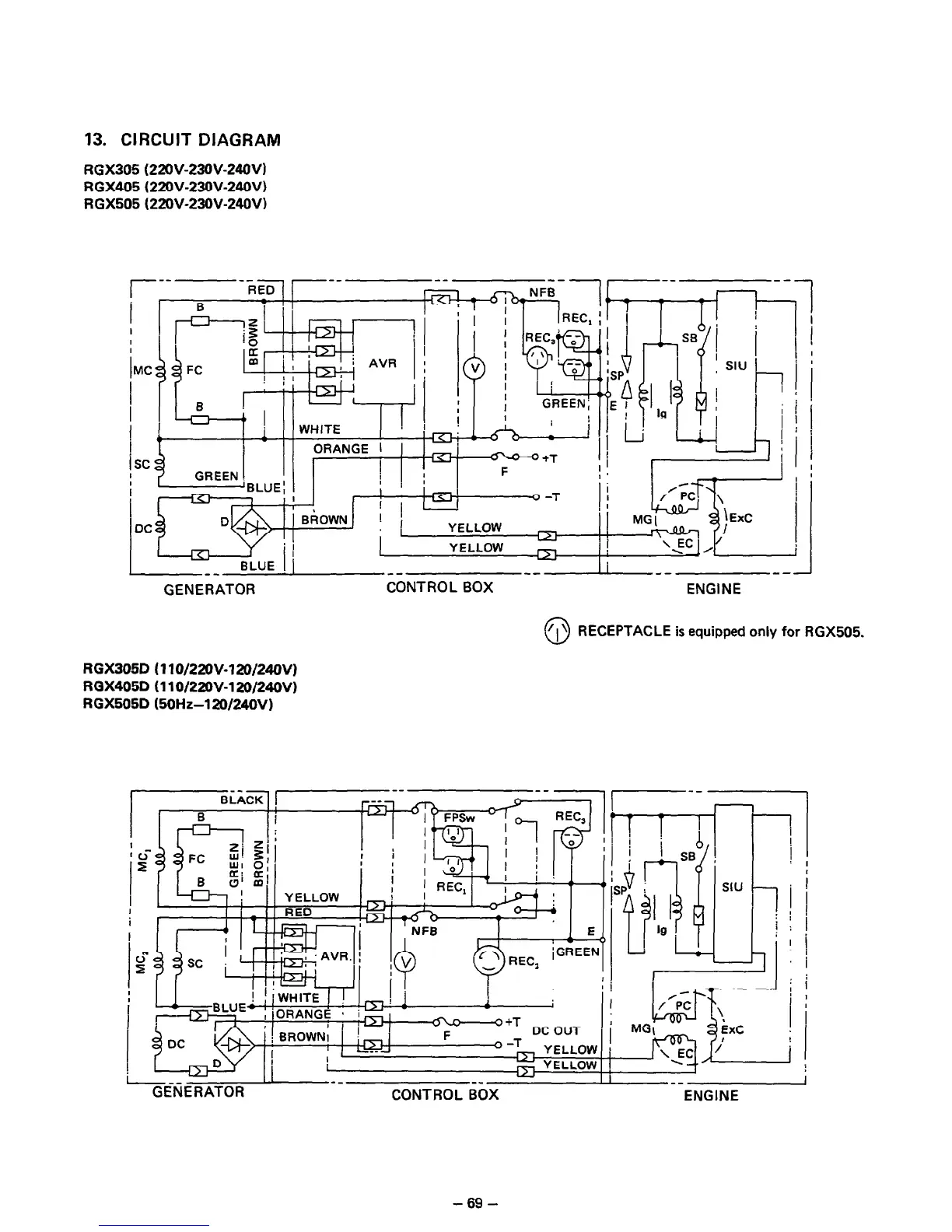
13. CIRCUIT DIAGRAM
RGX305 (220V-23OV-24OV)
RGX405 (22OV-23OV-24OV)
RGX505 (22OV-23OV-24OV)
pf TFC
‘y--$--p&
I
I
pc
/,~~--$@jb ; i “=& ~jExc
;Kz
==
11
BLUE 1
--
--
I I
‘-‘“J/[ j
I
--- --
-- J
GENERATOR
CONTROL BOX
ENGINE
0
‘11 RECEPTACLE is equipped only for RGX505.
RGX305D (110/22OV-120/24OV)
RGX405D (110/22OV-120/24OV3
RGX505D (50Hz-120/240VI
REC,
11 p$$J$~pi
SIU
1
,IutiANGE * i ;
I i”rr\!
: mr)r..nIII.
1 I
-+T
c
/GREEN
i III
: ,
I :
!A
j
i
~~ ~~
GENERATOR
CONTROL BOX
ENGINE
- 69 -

Related product manuals