EasyManua.ls Logo

Robland D 630 - Page 83

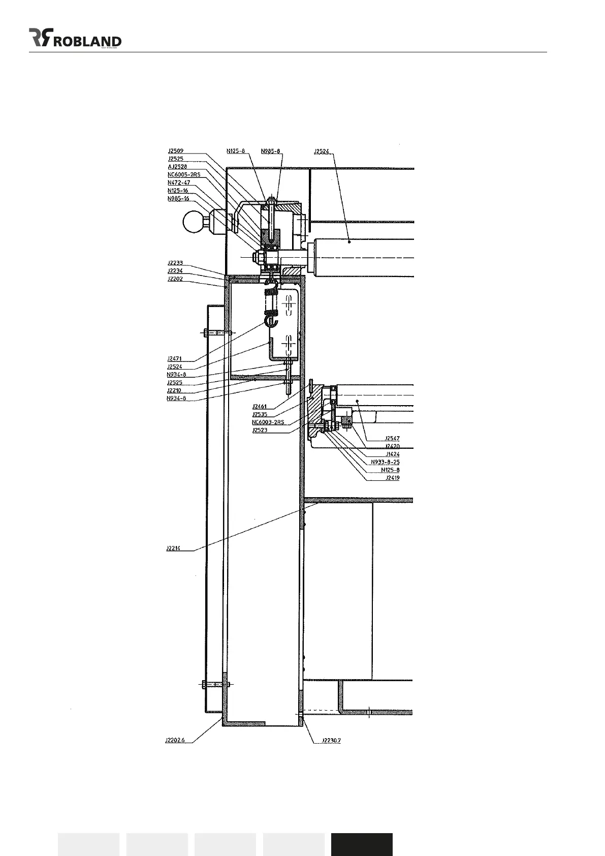
Robland D 630
Print Icon
To Next Page IconTo Next Page
To Next Page IconTo Next Page
To Previous Page IconTo Previous Page
To Previous Page IconTo Previous Page
Loading...
82 V1112 D 630
Nederlands Français English Deutsch

Table of Contents

Related product manuals