EasyManua.ls Logo

Sabre 30 - Page 69

Default Icon
81 pages
Print Icon
To Next Page IconTo Next Page
To Next Page IconTo Next Page
To Previous Page IconTo Previous Page
To Previous Page IconTo Previous Page
Loading...
3/21/2017 Sabre30OwnersManual
69/81
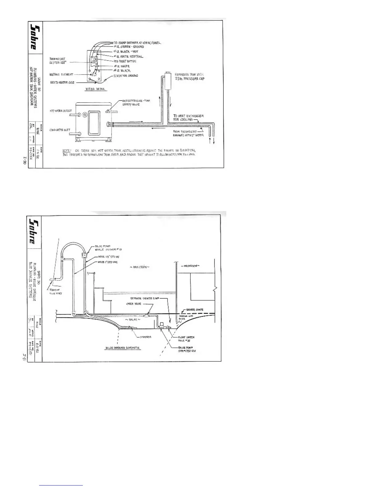
PLUMBINGBILGEDRAINAGE
BILGEDRAINAGESYSTEMS
AUXILIARYPOWERINSTRUMENTS
INSTRUMENTLOCATION