EasyManua.ls Logo

Samsung AC052MNCDKH - Indoor Unit Wiring Diagram

Samsung AC052MNCDKH
87 pages
Print Icon
To Next Page IconTo Next Page
To Next Page IconTo Next Page
To Previous Page IconTo Previous Page
To Previous Page IconTo Previous Page
Loading...
Samsung Electronics 6-1
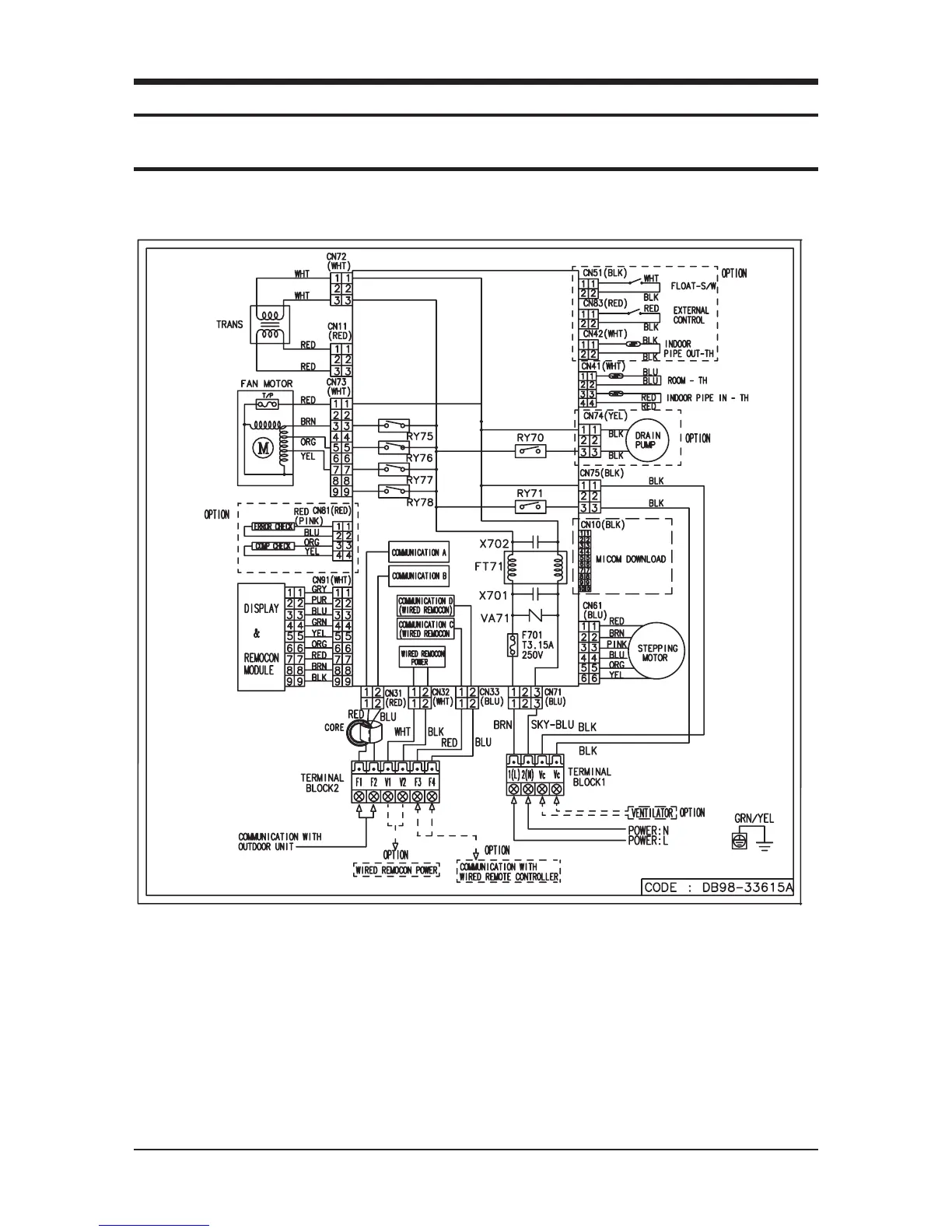
6. Wiring Diagram
6-1 Indoor Unit
This Document can not be used without Samsung’s authorization.
AC052MNCDKH / AC071MNCDKH

Related product manuals