EasyManua.ls Logo

Samsung MH070FXEA4A - Page 150

Samsung MH070FXEA4A
197 pages
Print Icon
To Next Page IconTo Next Page
To Next Page IconTo Next Page
To Previous Page IconTo Previous Page
To Previous Page IconTo Previous Page
Loading...
Samsung Electronics8-7
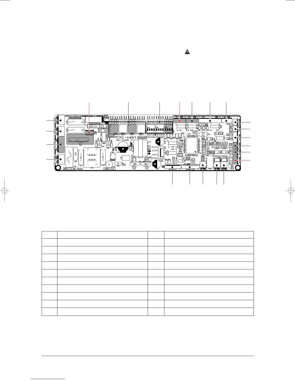
! Ventilator : YW396-03AV(BLK)
@ Drain Pump : YW396-03AV(WHT)
# Indoor Fan(SSR Control) : YW396-05AV(WHT)
$ AC Power : YW396-03AV(BLU)
% Indoor Address S/W(Main, RMC)
^ Option Switch
&
Electrical Expansion Valve(EEV) : B5B-XH-A(BLU)
* Load Control Signal
(
Panel Louver(Stepping Motor) : SMW250-10(WHT)
)
External Control Out(Error, Compressor State) : SMW250-04(RED)
1
External Control In(On/Off Control Signal) : SMW250-02(RED)
2 Floating Switch : SMW250-02(BLK)
3
Room/Eva.-In Temp. Sensor : SMW250-04(WHT)
4 Eva.-Out Temp. Sensor : SMW250-02(WHT)
5
Heater Discharge Temp. Sensor : SMW250-02(YEL)
6 RPM Feedback : SMW250-03(BLU)
7
Communication2(Wired Remocon_F3/F4) : YW396-02V(BLU)
8
Communication1(Outdoor_F1/F2) : YW396-02V(RED)
9
DC12V Out(Wired Remocon Power) : YW396-02V(WHT)
0 Micom Program Download : SMW200-10(BLK)
Display PCB : SMW200-9(WHT)
SSR Fan Control : SMW250-03(WHT)
1
2
3
4
5
6
PCB Diagram
MH✳✳✳FMEA
0 9 8 7
The red number connecter is not used.
!
@
#
$
& * ( )
% ^
The red number connecter is not used.

Other manuals for Samsung MH070FXEA4A

Related product manuals