EasyManua.ls Logo

Samsung MH070FXEA4A - MAIN PCB(Outdoor Unit)

Samsung MH070FXEA4A
197 pages
Print Icon
To Next Page IconTo Next Page
To Next Page IconTo Next Page
To Previous Page IconTo Previous Page
To Previous Page IconTo Previous Page
Loading...
8-10Samsung Electronics
MH040FXEA2/MH052FXEA2/MH14VP2X/MH16VP2X/MH18VP2X/MH19VP2X/MH14VW2X/MH16VW2X/MH18VW2X/MH19VW2X
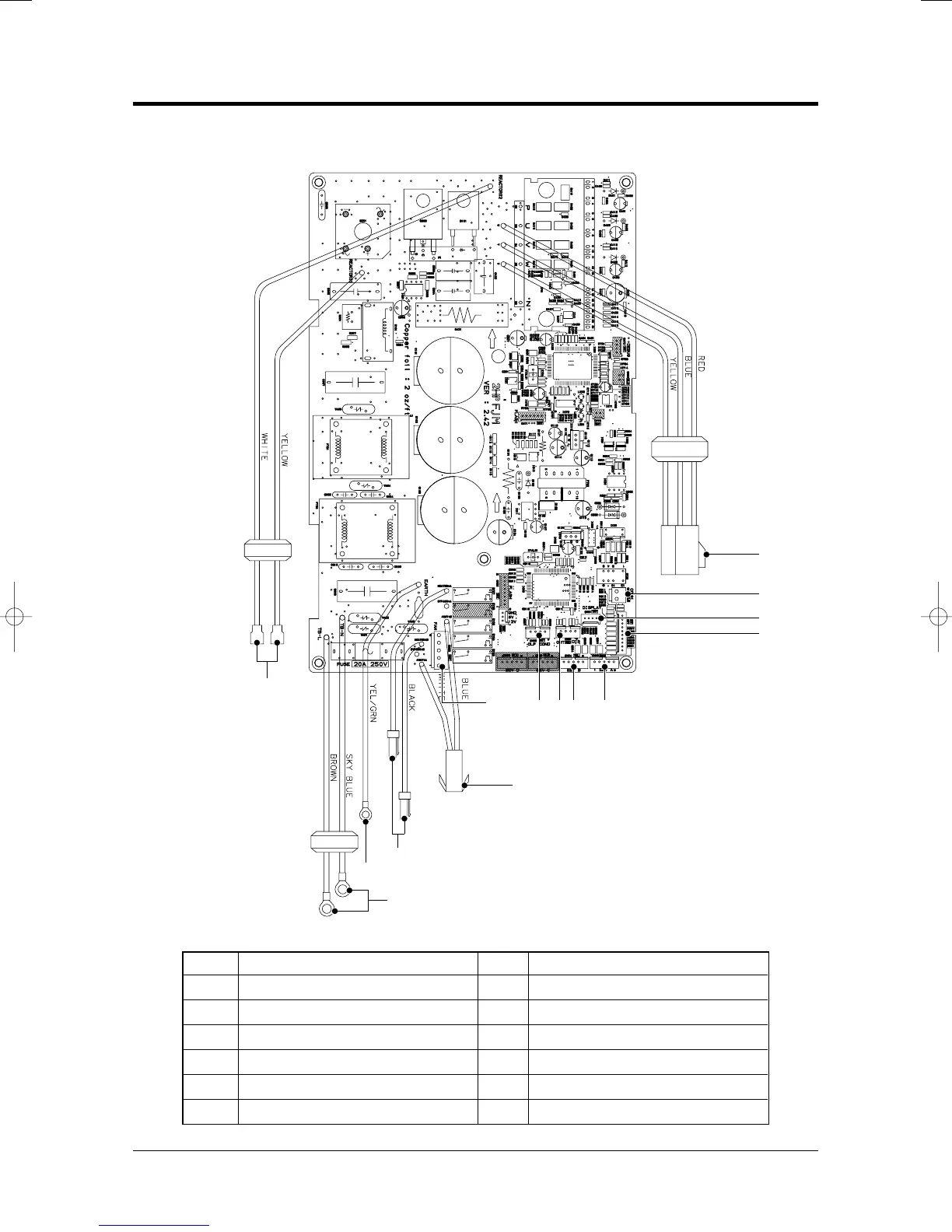
8-2 MAIN PCB(Outdoor Unit)
!
Compressor C/W
@
Communication
#
Display 4P
$
Display 10P
%
EEV A
^
EEV B
&
Thermistor-Out/Discharge
*
Thermistor-O.L.P Condenser
(
4 way C/W
)
Fan
1
Heater C/W
2
Earth C/W
3
Power C/W
4
Reactor C/W
*
4
1
&^ %
)
@
!
(
3
#
$
2

Other manuals for Samsung MH070FXEA4A

Related product manuals