EasyManua.ls Logo

Samsung RB2155SH - Page 33

Samsung RB2155SH
62 pages
To Next Page IconTo Next Page
To Next Page IconTo Next Page
To Previous Page IconTo Previous Page
To Previous Page IconTo Previous Page
Loading...
33
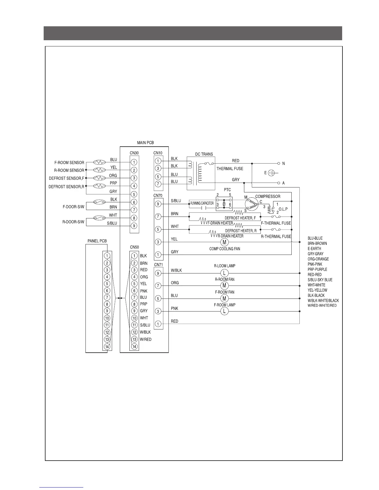
Circuit Descriptions

Related product manuals