EasyManua.ls Logo

Samsung SR-648EV - 4. Electric Diagram; 1. Voltage and Frequency Variations

Samsung SR-648EV
64 pages
Print Icon
To Next Page IconTo Next Page
To Next Page IconTo Next Page
To Previous Page IconTo Previous Page
To Previous Page IconTo Previous Page
Loading...
Samsung Electronics 5
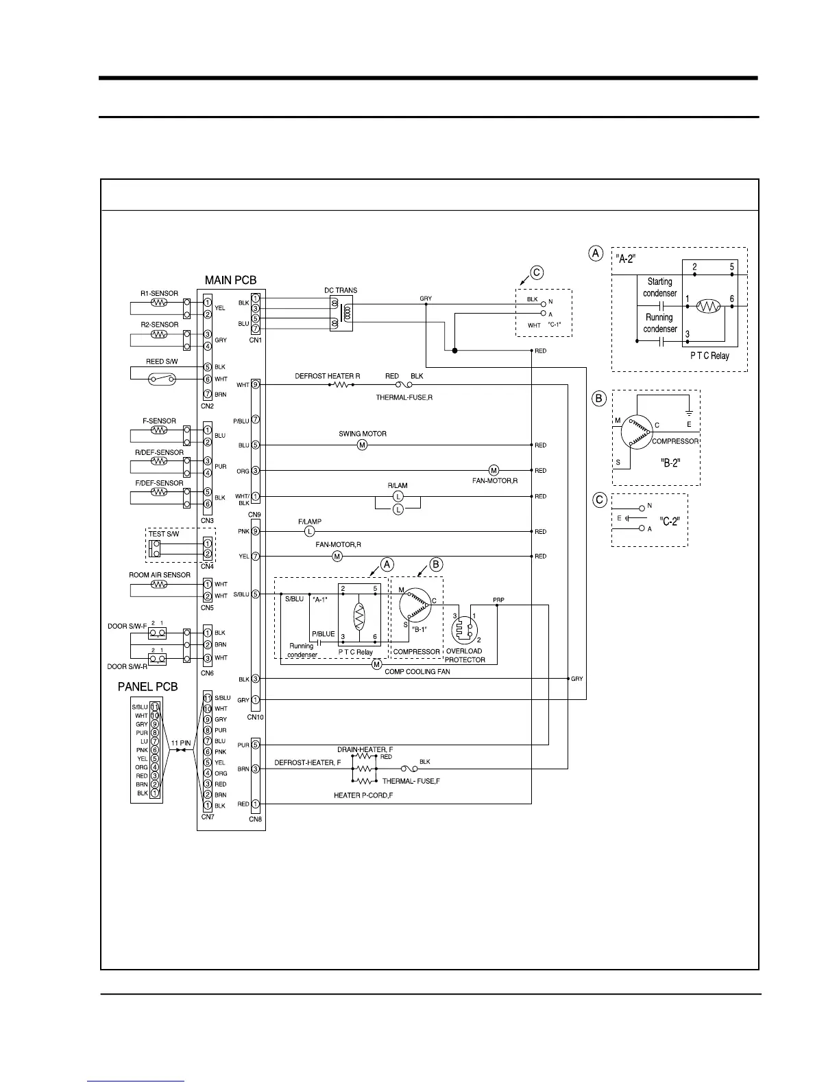
4. Electric Diagram
“A-1”:220-240V/50,60Hz
“A-2”:110-127V/60Hz
“B-1”, “C-1”:WITHOUT EARTH
“B-2”, “C-2”:WITH EARTH
RED-RED WHT-WHITE
BLUE-BLUE YEL-YELLOW
ORG-ORANGE BLK-BLACK
P/BLUE-PINK/BLUE
BRN-BROWN PRP-PURPLE
PINK-PINK W/BLK-WHITE/BLACK
GRY-GRAY S/BLU-SKY BLUE
1. 110~115V/60Hz, 127V/60Hz, 220V/50Hz, 240V/50Hz
CIRCUIT-DIAGTAM

Table of Contents

Related product manuals