EasyManua.ls Logo

Santon DFS-14 - DFS Wiring Diagrams; 2 String Unit DFS Electrical Connection

Santon DFS-14
16 pages
Print Icon
To Next Page IconTo Next Page
To Next Page IconTo Next Page
To Previous Page IconTo Previous Page
To Previous Page IconTo Previous Page
Loading...
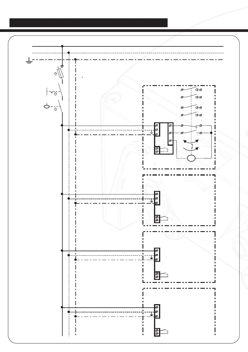
WIRING DFS / VERDRAHTUNG DFS / CÂBLAGE DFS
E
DFS-14 / DFS-14-W / DFS-14-MC4 / DFSHP-14-MC4
DFSHP-154-MC4 (EVO2)
Electrical connection drawing for 2 string units
* Emergency
stop button
latching
* All switches are
NC-contacts and
shown in the
actuated state.
None of the
switches shown in
this circuit
diagram are
supplied with the
DFS/PFS units.
These are only
used to illustrate
how a circuit can
be opened in
order to activate
the DFS/PFS
units in the event
of a fire.
Which type of
switch is used, is
up to the installer
and the number of
interruption points
does not matter,
as long as they
are connected in
series and each
individual isolater
interrupts the AC-
power supply to
the DFS/PFS
units in the event
of a fire.
N
L
4 pole / 2 strings DFS
switch DC contacts are
switched on when AC
power is applied
Aux. Contact max. 24V
4 pole / 2 strings DFS
switch DC contacts are
switched on when AC
power is applied
Aux. Contact max. 24V
L
N
11
4 pole / 2 strings DFS
switch DC contacts are
switched on when AC
power is applied
Aux. Contact max. 24V
13
+1
14
-2
+2
* Float
switch
4 pole / 2 strings DFS switch
DC contacts are switched on
when AC power is applied
AC-Grid
-2
*Circuit
breaker
L
N
-1
12
DFS
+2
-1
+1
DFS
UPS
L
N
Aux. contact
max. 24V
DFS
M
+
-
L
N
DFS
FB
FB
FB
FB
FB
FB
14

Related product manuals