EasyManua.ls Logo

Sanyo SPW-U485H - Dimensional Data

Sanyo SPW-U485H
517 pages
To Next Page IconTo Next Page
To Next Page IconTo Next Page
To Previous Page IconTo Previous Page
To Previous Page IconTo Previous Page
Loading...
1
1-275
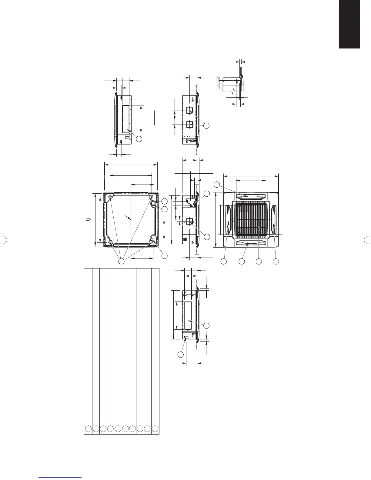
1-4. Dimensional Data
(A) Indoor Units: 4-Way Air Discharge Semi-Concealed Type
12, 16, 18, 25 Types
256
120
480
480
400
60
250
70
73
30
15
30
160
80 160
160
347
45
113
514
514
88
88
382
35
840
840
950
950
X
790
188
97
860 – 910
120
210
97
723
860 – 910
1
2
3
4
5
6
7
8
9
10
9
5 3
7
2
2
1
2
10
8
7
8
2
4
6
* The length of the suspension
bolts should be selected so
that there is a gap of 30 mm or
more below the lower surface
of the ceiling (15 mm or more
below the lower surface of the
main unit), as shown in the
gure at right. If the suspension
bolt is too long, it will contact
the ceiling panel and the unit
cannot be installed.
Less than 35
Air intake
Discharge outlet
Refrigerant tubing (liquid tube) 12–18 type ø6.35 ( ared), 25 type ø9.52 ( ared)
Refrigerant tubing (gas tube) 12–18 type ø12.7 ( ared), 25 type ø15.88 ( ared)
Drain tube connection port VP25 (outer dia. ø32)
Power supply port
Discharge duct connection port (ø150)
Vaporization-type humidi er (optional) installation point
Suspension bolt hole (4-12 х 37 hole)
Fresh air intake duct connection port (ø100)
X View
Ceiling opening dimensions
Suspension bolt pitch
Ceiling opening
dimensions
Suspension bolt pitch
Center of
panel
Less than 35
Unit : mm
SM830160-03ClassicPAC-iA4.ind275275SM830160-03ClassicPAC-iA4.ind275275 2010/02/1610:26:382010/02/1610:26:38

Table of Contents

Related product manuals