EasyManua.ls Logo

Sanyo SPW-U485H - Reference Diagram for Snow-Proof Duct (Field Supply): STK-BDE56 E; Dimensions of Snow-Proof Duct

Sanyo SPW-U485H
517 pages
To Next Page IconTo Next Page
To Next Page IconTo Next Page
To Previous Page IconTo Previous Page
To Previous Page IconTo Previous Page
Loading...
1
1-341
15
569
70250 790
18 554
529
87
608
295
105690
247
249
265
46
17
310
12
336
285
51109
18
2- 19
(157)153
(161)149
50
12
50
1
2
3
263 (O.D.)
250 (O.D.)
529 (O.D.)
529 (O.D.)
27
13
549
7
36015
22
81
15
125 250
7
18
18
8
50
37
68
10
549
20
21
81
170133
+
6
7
2- 6
6
1
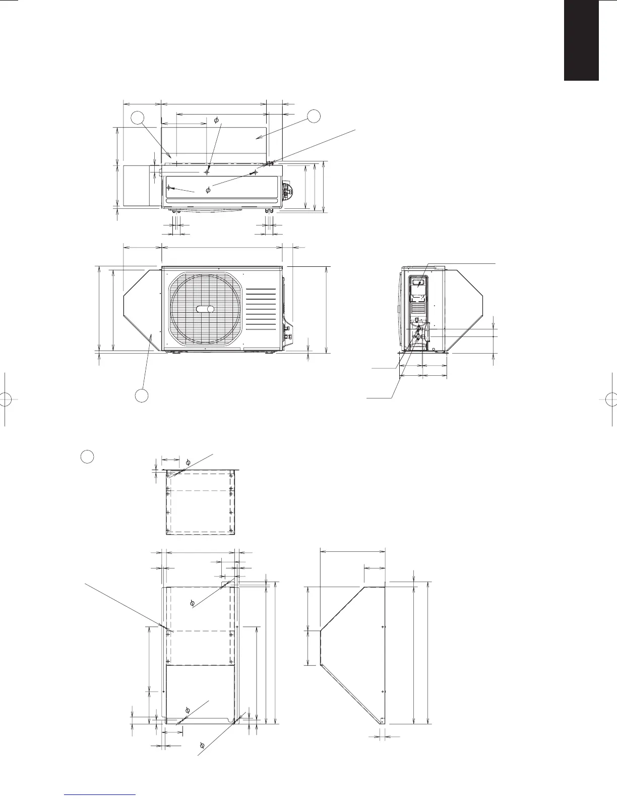
Reference diagram for snow-proof duct ( eld supply) : STK-BDE56E
Unit: mm
Unit: mm
hole
2- ø12 hole
(Anchor bolt M8)
Electrical wiring inlet
Refrigerant tubing joint (liquid tube)
Flare connection ø9.52 mm
Refrigerant tubing joint (gas tube)
Flare connection ø15.88 mm
Dimensions of Snow-proof Duct
Reference diagram for SPW-C256VH
Drain port
2- ø3.3 protrusion hole
(reverse side)
hole
hole
hole
Drain port
SM830160-03ClassicPAC-iA4.ind341341SM830160-03ClassicPAC-iA4.ind341341 2010/02/1610:26:532010/02/1610:26:53

Table of Contents

Related product manuals