EasyManua.ls Logo

Schartec Jet 500 - P190 Steuerung Skizze

Default Icon
Print Icon
To Next Page IconTo Next Page
To Next Page IconTo Next Page
To Previous Page IconTo Previous Page
To Previous Page IconTo Previous Page
Loading...
4
mechanische Beschädigungen durch Unfall, Fall oder Stoß
fahrlässige oder mutwillige Zerstörung
normale Abnutzung, Verschleiß oder Wartungsmangel
Reparatur durch nicht qualizierte Personen
Verwendung von Teilen fremder Herkunft
Entfernen oder unkenntlich machen der Seriennummer
Ersetzte Teile werden Eigentum des Herstellers.
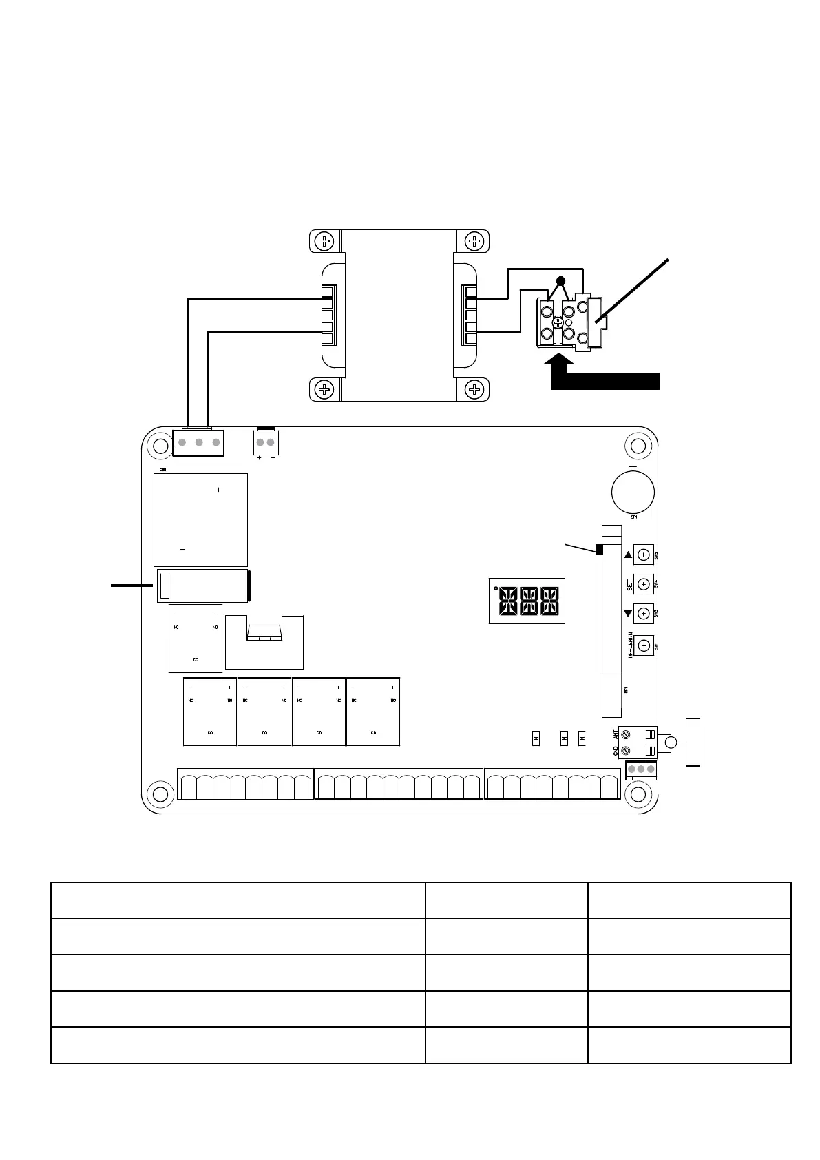
P190 Steuerung Skizze
Antenne
1 2 3 4 5 6 7 8
9 10 11 12 13 14 15 16 17 18
19 20 21 22 23 24 25 26
UP
SET
DOWN
RF-LEARN
11
Lit+ Lit- Lat+ Lat- M1+ M1- M2+ M2-
LED Display
5V S1 S2 GND Lmt1 Lmt2 GND Lmt3 Lmt4 GND DKey SKey GND Ph1 PhVccGND Ph2 PhVcc
LED2 LED3 LED4
Trafo-Sicherung
Nur Time-Lag
2A/250V, 5*20mm
verwenden!
Stromversorgung
230 V AC
brown = L1 (phase)
blue = N (neutral)
Bitte ein 16 AWG
(1,5 mm²) Kabel
verwenden.
blaue LED
leuchtet auf, wenn
RF-Learn gedrückt wird
Platine
Sicherung
Nur
Time-Lag
20A/250V,
5*20mm
verwenden!
Trafo
LED2: Taster / Schlüsselschalter
LED3: Lichtschranke 1
LED4: Lichtschranke 2
Spezifikationen für Kabel/Verkabelung
Anschluss
Stromversorgung
Motoranschlüsse
Signalleuchten, Lichtschranken, Taster, Schlüsselschalter
Elektroschloss
1x Kabel mit 3 x 1,5 mm²
(16 AWG)
1x Kabel mit 5 x 1,5 mm²
(16 AWG)
0,5 mm² (20 AWG)
1,0 mm² (17 AWG)
20 m (wenn länger dann 2,5 mm² /
14 AWG verwenden
10 meter
20 meter
10 meter
Kabelliste Maximal zulässige Länge

Related product manuals