EasyManua.ls Logo

Scotsman ACM 85 - Page 10

Scotsman ACM 85
43 pages
Print Icon
To Next Page IconTo Next Page
To Next Page IconTo Next Page
To Previous Page IconTo Previous Page
To Previous Page IconTo Previous Page
Loading...
Basic electr. Amps. Start Amps Watts No of Wires Amp. Fuse
Page 09
SPECIFICATIONS (CONT'D)
Electr. power cons.
Kwh per 24 Hrs
230/50/1 5.3 29 1100 22 3 x 1.5 m/m 16
Cubes per harvest: 72 large / 102 medium / 198 small.
* At 15°C (60°F) water temperature
2
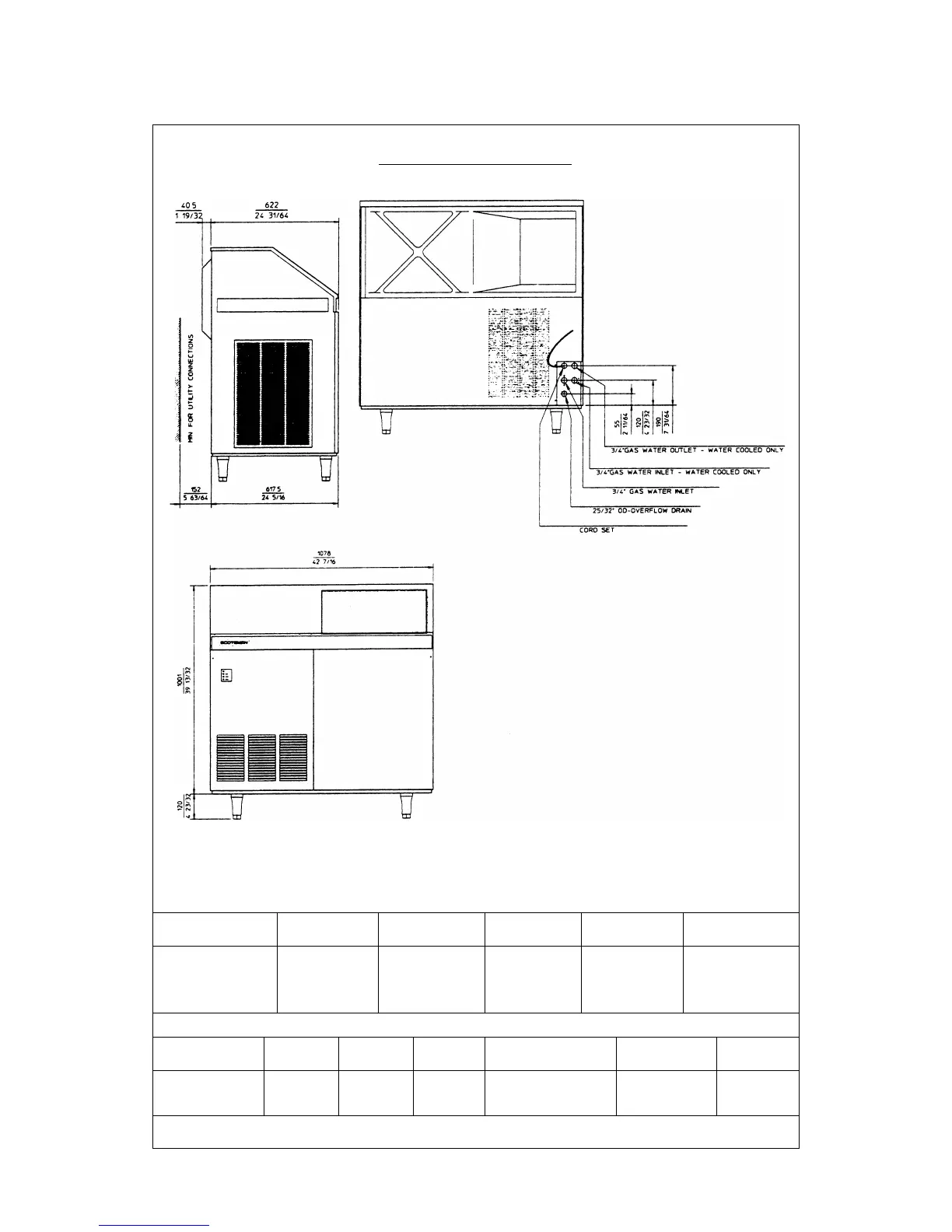
FRONT VIEW
HEIGHT (without legs) 1006 mm.
HEIGHT (with legs) 1126 mm.
WIDTH 1078 mm.
DEPTH 660 mm.
WEIGHT 115 Kgs.
AC 225 - CUBER MACHINE SPECIFICATIONS
Model Cond. Finish Comp. HP
Ice bin cap. Water requirem
Kgs. LTx24 HR
AC 225 AS Air S/Steel 0250*
170
AC 225 WS Water S/Steel 1500*

Table of Contents

Related product manuals