EasyManua.ls Logo

Scotsman EC 175 - Page 10

Scotsman EC 175
43 pages
Print Icon
To Next Page IconTo Next Page
To Next Page IconTo Next Page
To Previous Page IconTo Previous Page
To Previous Page IconTo Previous Page
Loading...
Page 10
Page 10
Basic electr. Amps. Start Amps Watts No of Wires Amp. Fuse
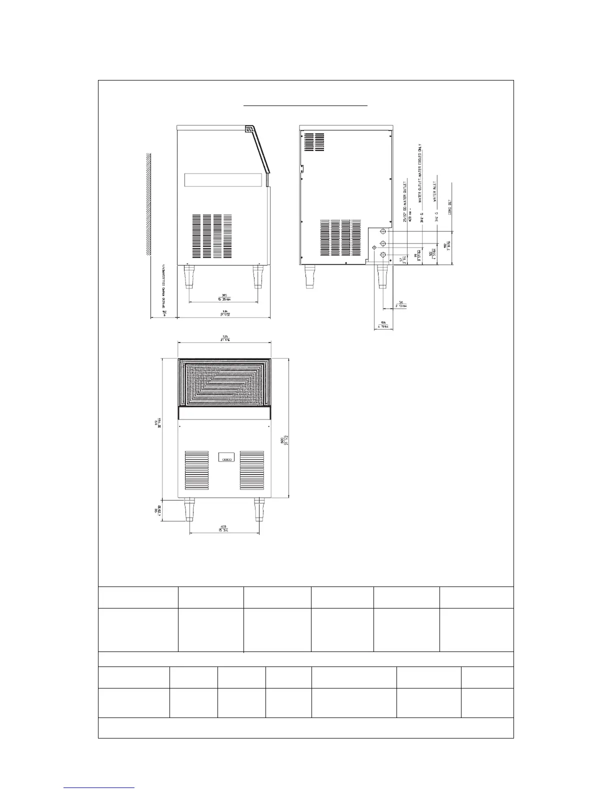
SPECIFICATIONS (CONT'D)
Electr. power cons.
Kwh per 24 Hrs
230/50/1 3.5 18 550 10 3 x 1.5 mm
2
10
Cubes per harvest: 32 medium
* At 15°C water temperature
Model Cond. Finish Comp. HP
Ice bin cap. Water requirem
Kgs. LTx24 HR
EC 105 AS Air S/Steel 180*
3/8 18
EC 105 WS Water S/Steel 530*
FRONT VIEW
HEIGHT (without legs) 813 mm.
HEIGHT (with legs) 950 mm.
WIDTH 535 mm.
DEPTH 534 mm.
WEIGHT 44 Kgs.
EC 105 - CUBER
machine specifications

Related product manuals