EasyManua.ls Logo

Scotsman EC 175 - Page 12

Scotsman EC 175
43 pages
Print Icon
To Next Page IconTo Next Page
To Next Page IconTo Next Page
To Previous Page IconTo Previous Page
To Previous Page IconTo Previous Page
Loading...
Page 12
Page 12
Basic electr. Amps. Start Amps Watts No of Wires Amp. Fuse
SPECIFICATIONS (CONT'D)
Electr. power cons.
Kwh per 24 Hrs
230/50/1 3.8 20 670 13 3 x 1.5 mm
2
10
Cubes per harvest: 36 large / 48 medium / 84 small
* At 15°C water temperature
Ice bin cap. Water requirem
Kgs. LTx24 HR
EC 125 AS Air S/Steel 160*
1/2 28
EC 125 WS Water S/Steel 680*
Model Cond. Finish Comp. HP
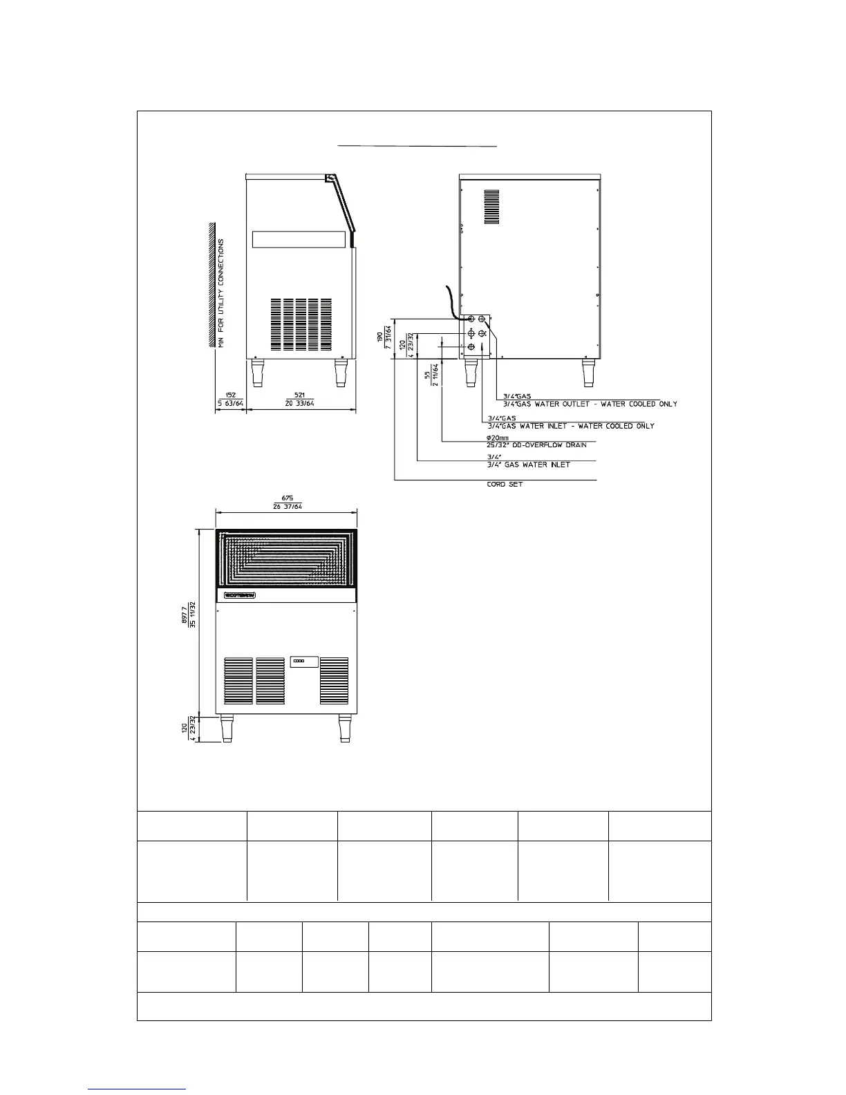
FRONT VIEW
HEIGHT (without legs) 900 mm.
HEIGHT (with legs) 1020 mm.
WIDTH 675 mm.
DEPTH 520 mm.
WEIGHT 75 Kgs.
EC 125 - CUBER
machine specifications

Related product manuals