EasyManua.ls Logo

Scotsman EC 175 - Page 14

Scotsman EC 175
43 pages
Print Icon
To Next Page IconTo Next Page
To Next Page IconTo Next Page
To Previous Page IconTo Previous Page
To Previous Page IconTo Previous Page
Loading...
Page 14
Page 14
Basic electr. Amps. Start Amps Watts No of Wires Amp. Fuse
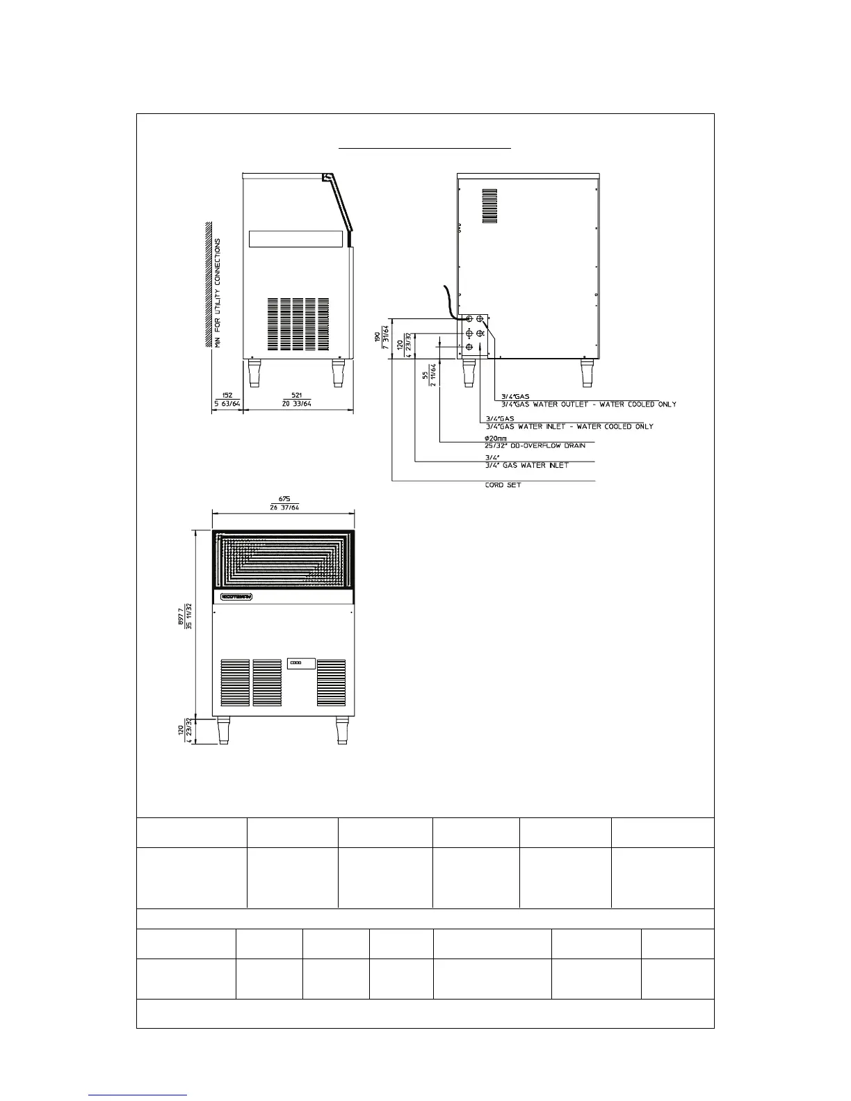
SPECIFICATIONS (CONT'D)
Electr. power cons.
Kwh per 24 Hrs
230/50/1 5.3 29 850 18 3 x 1.5 mm
2
16
Cubes per harvest: 36 large / 48 medium
* At 15°C water temperature
Ice bin cap. Water requirem
Kgs. LTx24 HR
EC 175 AS Air S/Steel 0160*
3/4 28
EC 175 WS Water S/Steel 1000*
Model Cond. Finish Comp. HP
FRONT VIEW
HEIGHT (without legs) 900 mm.
HEIGHT (with legs) 1020 mm.
WIDTH 675 mm.
DEPTH 520 mm.
WEIGHT 75 Kgs.
EC 175 - CUBER
machine specifications

Related product manuals