EasyManua.ls Logo

Scotsman EC 175 - Page 8

Scotsman EC 175
43 pages
Print Icon
To Next Page IconTo Next Page
To Next Page IconTo Next Page
To Previous Page IconTo Previous Page
To Previous Page IconTo Previous Page
Loading...
Page 8
Page 8
EC 85 AS Air
EC 85 WS Water
Stainless steel 3/8 14 Kg.
Start . Electric power cons.
Amps Kwh per 24 Hr
Capacity Water req.
the cold store lt/24 HR
Model Cond. unit Finish Comp. HP
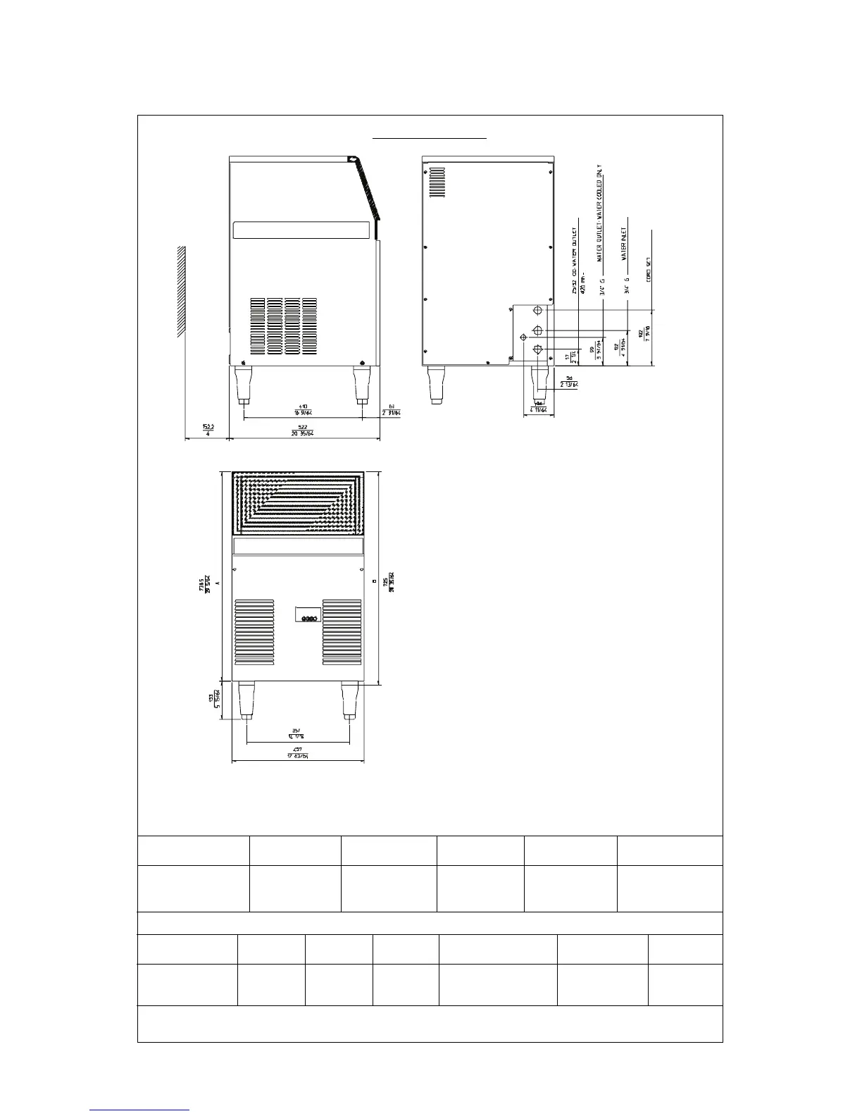
SPECIFICATIONS
Basic electr. Amps Watts Nr. of wires Amps fuse
230/50/1 3.2 17 500 10 3 x 1.5 mm
2
10
0140 **
380*
EC 85 - CUBER
machine specifications
Cubes per harvest: 24 medium
* A 15°C water temperature
Dimensions:
HEIGHT 738 mm.
WIDTH 457 mm.
DEPTH 522 mm.
WEIGHT 44 Kgs.

Related product manuals